Last Updated: 8 Hrs. Ago

Monthly Rent

$4,295

Beds

5

Baths

3

* Price shown is base rent. Excludes user-selected optional fees and variable or usage-based fees and required charges due at or prior to move-in or at move-out. View Fees and Policies for details. Price, availability, fees, and any applicable rent special are subject to change without notice.

Note: Prices and availability subject to change without notice.

Lease Terms

Contact office for Lease Terms

Expenses

  • Security Deposit - Refundable: $4295

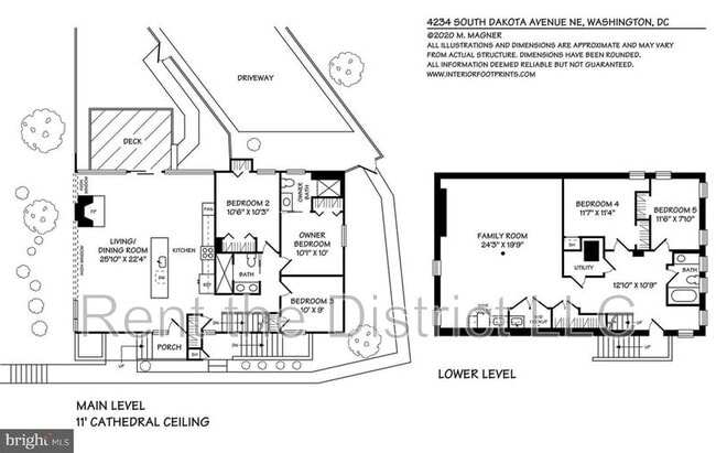
About 4234 South Dakota Ave NE

Welcome home to this stunning, 5BR / 3BA mid-century residence on a quiet street in Brookland, just minutes from the Brookland Metro! This sophisticated home is drenched in natural light and showcases soaring vaulted ceilings, dramatic skylights, and expansive open-concept living spaces designed for both everyday comfort and elegant entertaining. The chef-caliber kitchen features brand-new stainless steel appliances, a gas range, and generous counter space. Seamlessly transition outdoors to a brand-new deck overlooking an expansive, fully fenced backyard, creating a private retreat ideal for al fresco dining, gatherings, or quiet relaxation. The impeccably finished lower level offers exceptional versatility, complete with a recreation lounge, custom cabinetry, sleek counters, and a built-in wine cooler - perfect as a guest suite, home office, or entertainment haven. Set on an exceptional 11,761-square-foot lot, this home also offers rare off-street parking with an expanded driveway plus convenient overflow parking on Taylor Street. Ideally located just minutes from the Brookland Metro, neighborhood dining, and shops. Amenities include central A/C, in-unit washer / dryer, stainless steel appliances, dishwasher / garbage disposal, gas fireplace, oversized driveway with off-street parking, and fenced-in backyard. Lease Details: - Available March 7 - Minimum 12-month lease - Tenants responsible for water, gas, electric, and internet (if desired) - Pets welcome with $50/month pet rent - Security deposit equal to one month’s rent - $45 application fee Amenities: Dishwasher, Pet Friendly, Off-street parking, Stainless steel appliances, Gas fireplace, Central A/C, Washer and Dryer In-Unit

4234 South Dakota Ave NE is located in Washington, District of Columbia in the 20017 zip code.

Protect yourself from fraud. Do not send money to anyone you don't know.

Floorplan Amenities

  • Fireplace
  • Dishwasher

Parking

  • Street Parking

Pet Policy

  • Dogs and Cats Allowed

Airport

  • Ronald Reagan Washington Ntl

    Drive: 17 min 9.4 mi

Commuter Rail

  • Riverdale

    Drive: 7 min 3.4 mi
  • Lead

    Drive: 7 min 4.1 mi
  • Union Station

    Drive: 8 min 4.2 mi
  • College Park Marc Nb

    Drive: 10 min 4.5 mi
  • College Park Marc Sb

    Drive: 10 min 4.7 mi

Transit / Subway

  • Brookland-Cua

    Walk: 20 min 1.0 mi
  • Fort Totten

    Drive: 3 min 1.4 mi
  • Rhode Island Ave-Brentwood

    Drive: 4 min 2.1 mi
  • West Hyattsville, Green/Yellow Line Track 2 Platform

    Drive: 4 min 2.1 mi
  • West Hyattsville, Green/Yellow Line Track 1 Platform

    Drive: 4 min 2.1 mi

Universities

Parks & Recreation

  • Mount Rainier Nature Center

    Drive: 3 min 1.4 mi
  • Dueling Creek Natural Area

    Drive: 4 min 2.1 mi
  • Washington Youth Garden

    Drive: 4 min 2.7 mi
  • Bladensburg Waterfront Park

    Drive: 5 min 3.0 mi
  • National Arboretum

    Drive: 7 min 3.1 mi

Shopping Centers & Malls

Military Bases

Schools

Data provided by GreatSchools.org 2025 © 2025. All rights reserved.

Similar Nearby Apartments with Available Units

  • = This Property
  • = Similar Nearby Apartments

Ratings

Report an Issue

4234 South Dakota Ave NE
I would like to...
0 out of 400 characters
(202) 335-0337

Submitting Request

Thank You

Your email has been sent.