Last Updated: 1 Day Ago

Monthly Rent

No Availability

Beds

2

Baths

1

* Price shown is base rent. Excludes user-selected optional fees and variable or usage-based fees and required charges due at or prior to move-in or at move-out. View Fees and Policies for details. Price, availability, fees, and any applicable rent special are subject to change without notice. Note: Price and availability subject to change without notice. Note: Based on community-supplied data and independent market research. Subject to change without notice.

Lease Terms

Contact office for Lease Terms

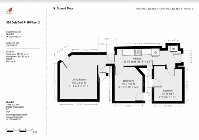
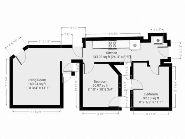
About 330 Delafield Pl NW

This light-filled condo located in a boutique four-unit building is in one of the best parts of Petworth! The unit features hardwood floors throughout with an open floor concept. The kitchen is equipped with ample cabinet space, updated appliances, and a gas range. Both bedrooms are sizable and the primary room can comfortably accommodate a queen size bed! The washer and dryer in the unit make laundry day a breeze. This condo offers the opportunity to live at the center of one of DC's hippest neighborhoods. Trendy restaurants are everywhere and the Upshur corridor, just a 15-minute walk away is bustling with bars and dining options, including Hitching Post, Timber Pizza Co, and Cinder BBQ. The neighborhood comes alive on warm summer nights. Yes! Organic, Petworth Farmers Market (Saturdays), and Safeway make grocery shopping a breeze. Check it out in Tiktok: Take a virtual tour: Security deposit is equal to one month's rent. One parking spot is included. Tenants are responsible for electricity and gas. Pets welcome! Nest DC happily accepts applicants whose rent is paid either in part or in full via rental housing assistance provided by the District or federal government. To view all of our available properties, or to contact our team, please visit www.nest- Central Ac/Heat Pet Friendly Sewer Shared Frontyard Trash Water

330 Delafield Pl NW is located in Washington, District of Columbia in the 20011 zip code.

Floorplan Amenities

  • Washer/Dryer

Pet Policy

  • Dogs and Cats Allowed

Airport

  • Ronald Reagan Washington Ntl

    Drive: 18 min 8.8 mi

Commuter Rail

  • Silver Spring Marc Eb

    Drive: 7 min 3.6 mi
  • Lead

    Drive: 9 min 4.4 mi
  • Union Station

    Drive: 10 min 4.5 mi
  • 4

    Drive: 11 min 4.9 mi
  • Riverdale Marc Sb

    Drive: 11 min 5.4 mi

Transit / Subway

  • Georgia Ave-Petworth

    Drive: 2 min 1.2 mi
  • Fort Totten

    Drive: 3 min 1.3 mi
  • Columbia Heights

    Drive: 4 min 2.1 mi
  • Takoma

    Drive: 5 min 2.4 mi
  • Brookland-Cua

    Drive: 6 min 3.2 mi

Universities

Parks & Recreation

  • Meridian Hill Park

    Drive: 5 min 2.8 mi
  • Montgomery College Planetarium

    Drive: 6 min 2.9 mi
  • National Zoo

    Drive: 7 min 3.2 mi
  • Rock Creek Park

    Drive: 9 min 3.3 mi
  • Hillwood Estate, Museum & Gardens

    Drive: 8 min 3.3 mi

Shopping Centers & Malls

Military Bases

Schools

Data provided by GreatSchools.org 2025 © 2025. All rights reserved.

Similar Nearby Apartments with Available Units

  • = This Property
  • = Similar Nearby Apartments

Ratings

Walkability

NR
Not Rated

Transit

NR
Not Rated

Bikeability

NR
Not Rated

Rent Ranges for Similar Nearby Apartments.

Studio
614 Sq Ft
$975 - $2,309
1 Bed
728 - 739 Sq Ft
$1,050 - $2,814
2 Beds
1,038 Sq Ft
$1,250 - $3,986
3 Beds
1,507 Sq Ft
$2,695
4 Beds
4,270 Sq Ft
$4,650 - $24,999
Report an Issue

330 Delafield Pl NW
I would like to...
0 out of 400 characters
(202) 968-1777

Submitting Request

Thank You

Your email has been sent.

}