Last Updated: 1 Day Ago

Monthly Rent

$3,400

Beds

4

Baths

3

* Price shown is base rent. Excludes user-selected optional fees and variable or usage-based fees and required charges due at or prior to move-in or at move-out. View Fees and Policies for details. Price, availability, fees, and any applicable rent special are subject to change without notice.

Note: Prices and availability subject to change without notice.

Lease Terms

Contact office for Lease Terms

Fees and Policies

The fees below are based on community-supplied data and may exclude additional fees and utilities.

  • Dogs
    • Allowed
  • Cats
    • Allowed

Property Fee Disclaimer: Based on community-supplied data and independent market research. Subject to change without notice. May exclude fees for mandatory or optional services and usage-based utilities.

About 9503 Castlewood Dr

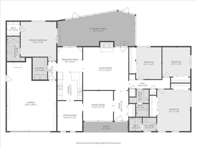
Discover a timeless Austin residence at 9503 Castlewood Drive. This beautiful home, offers a unique opportunity to embrace the vibrant Austin lifestyle in a home with established character. The home provides ample space for comfortable living with a very spacious living room with stone fireplace, formal dining with gorgeous windows, formal living for that extra space to relax and a charming breakfast area right off the kitchen.. In addition, there are four well-proportioned bedrooms, offering flexibility for family, guests, or dedicated home office spaces, along with three full bathrooms to ensure convenience and privacy. Step out to your oversized screened in patio with ceiling fans to keep you cool while you entertain guests and enjoy the view of your huge backyard surrounded by tall shade trees. Practicality meets convenience with a two-car garage and long driveway, providing ample parking and additional storage solutions. This property invites you to envision your future in a cherished Austin setting on a gorgeous almost half acre lot! 12-24 month lease options. MLS ID 9690143

9503 Castlewood Dr is located in Austin, Texas in the 78748 zip code.

Protect yourself from fraud. Do not send money to anyone you don't know.

Floorplan Amenities

  • Dishwasher
  • Microwave
  • Tile Floors

Pet Policy

  • Cats and Dogs Allowed

Airport

  • Austin-Bergstrom International

    Drive: 30 min 14.9 mi

Commuter Rail

  • Austin

    Drive: 18 min 8.6 mi

Transit / Subway

  • Downtown Station

    Drive: 17 min 10.8 mi
  • Plaza Saltillo Station

    Drive: 17 min 11.5 mi
  • M L King Jr Station

    Drive: 20 min 13.1 mi

Universities

Parks & Recreation

  • Slaughter Creek at Bauerle Ranch

    Drive: 6 min 2.5 mi
  • Goat Cave Nature Preserve

    Drive: 7 min 3.5 mi
  • Circle C Ranch Metropolitan Park

    Drive: 8 min 4.6 mi
  • Dick Nichols Park

    Drive: 9 min 4.8 mi
  • Lady Bird Johnson Wildflower Center

    Drive: 10 min 4.9 mi

Shopping Centers & Malls

Military Bases

Schools

Data provided by GreatSchools.org 2025 © 2025. All rights reserved.

Similar Nearby Apartments with Available Units

  • = This Property
  • = Similar Nearby Apartments

Ratings

Walkability

NR
Not Rated

Transit

NR
Not Rated

Bikeability

NR
Not Rated
Report an Issue


9503 Castlewood Dr
I would like to...
0 out of 400 characters
(512) 567-8876

Submitting Request

Thank You

Your email has been sent.

}