Last Updated: 30 Mins. Ago

Monthly Rent

$1,415

Beds

1

Baths

1

* Price shown is base rent. Excludes user-selected optional fees and variable or usage-based fees and required charges due at or prior to move-in or at move-out. View Fees and Policies for details. Price, availability, fees, and any applicable rent special are subject to change without notice.

Note: Prices and availability subject to change without notice.

Lease Terms

Contact office for Lease Terms

Expenses

About 6655 SE Taggart St

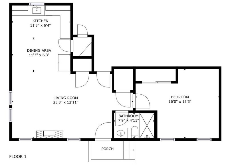
Located on the lower level of a larger home, this private 1 bed, 1 bath South Tabor apartment is a true gem! This newly constructed space offers beautiful details, including a mix of carpeting and engineered hardwood flooring, an open floor plan, and a shared, fenced yard. The kitchen has a stainless steel refrigerator and dishwasher, a subway tile backsplash, and quartz counters. Please note, there is a countertop induction cooktop and a microwave but no oven. A convenient stacked washer/dryer in the closet ups the convenience factor. This great South Tabor neighborhood is close to SE Division, Hawthorne, Mt. Tabor Park, and the SE Campus of PCC. There’s easily accessible public transit to downtown Portland via the 2 and 9 bus routes. Make the quick drive to WinCo, Safeway, or Natural Grocers when for all the necessities. Beautiful Mt. Tabor Park is only five blocks away for some of the best views and trails in the city. Rain or Shine Coffee House is a 10-minute walk from home. Other top eateries nearby include The Observatory, Lazy Susan, and Coquine.  About Bungalow: We are on a mission to take the hassle out of renting. When you live in a Bungalow managed property, you are getting a modern, tech-enabled, responsive landlord from Day 1. We have all your needs covered, from utility setup to flexible lease terms, an easy-to-use app for paying rent, on-staff maintenance technicians, a dedicated team of customer support experts, and even optional furnishings and monthly cleanings. Find out why thousands of renters are choosing to rent with Bungalow.

Stylish South Tabor apartment 5 blocks fro... is located in Portland, Oregon in the 97206 zip code.

Protect yourself from fraud. Do not send money to anyone you don't know.

Floorplan Amenities

  • Washer/Dryer
  • Dishwasher
  • Patio

Pet Policy

No Pets Allowed

Airport

  • Portland International

    Drive: 18 min 9.6 mi

Commuter Rail

  • Portland

    Drive: 16 min 7.0 mi
  • Oregon City Amtrak

    Drive: 20 min 11.8 mi
  • Tigard Transit Center

    Drive: 26 min 12.7 mi
  • Hall/Nimbus

    Drive: 27 min 13.9 mi
  • Vancouver

    Drive: 27 min 14.0 mi

Transit / Subway

  • Se Powell Blvd

    Drive: 5 min 1.8 mi
  • Se Holgate Blvd

    Drive: 5 min 2.2 mi
  • Se Main Street

    Drive: 6 min 2.5 mi
  • Se Division Street

    Drive: 8 min 3.6 mi
  • Ne 60Th

    Drive: 11 min 4.7 mi

Universities

Parks & Recreation

  • Creston Park

    Drive: 4 min 1.3 mi
  • Mt. Tabor Park

    Drive: 7 min 1.9 mi
  • Kelly Butte Natural Area

    Drive: 6 min 2.3 mi
  • Ed Benedict Park

    Drive: 7 min 2.3 mi
  • Lents Park

    Drive: 7 min 2.4 mi

Shopping Centers & Malls

Military Bases

Similar Nearby Apartments with Available Units

  • = This Property
  • = Similar Nearby Apartments

Ratings

Report an Issue

Stylish South Tabor apartment 5 blocks fro...
I would like to...
0 out of 400 characters
(415) 997-3615

Submitting Request

Thank You

Your email has been sent.