Last Updated: 3 Days Ago

Monthly Rent

$7,700

Beds

1

Baths

1.5

* Price shown is base rent. Excludes user-selected optional fees and variable or usage-based fees and required charges due at or prior to move-in or at move-out. View Fees and Policies for details. Price, availability, fees, and any applicable rent special are subject to change without notice.

Note: Prices and availability subject to change without notice.

Lease Terms

Contact office for Lease Terms

About 65 Cooper Sq

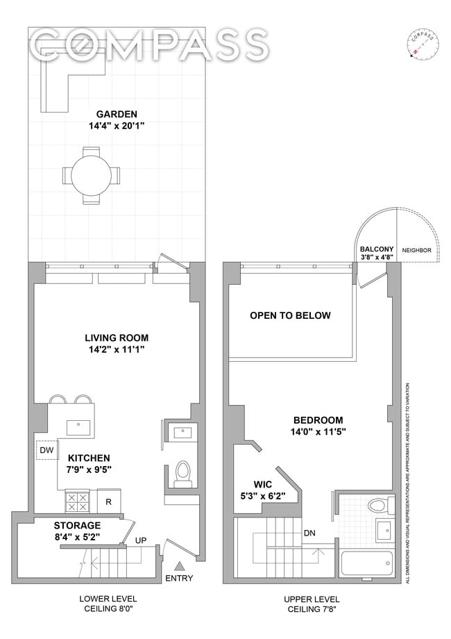
Duplex loft-style 1 bed, 1.5 bath with double-height ceilings, oversized windows, and private garden in the heart of the NOHO/East Village. The main living level features soaring ceilings, large industrial-style windows, and polished concrete floors, creating a bright, open great room with clear separation for living and dining. Exposed brick walls add character while maintaining a clean, modern aesthetic. The open kitchen is outfitted with white cabinetry, concrete countertops, stainless steel appliances, and a peninsula with bar seating. The layout works well for everyday living, entertaining, or working from home. Additional highlights include: • Double-height ceilings • Oversized windows with garden exposure • Polished concrete floors • Exposed brick walls • Open kitchen with peninsula seating • Spacious sleeping area with privacy • Updated bathrooms with modern finishes Located near the East Village’s & NOHO's major transportation, dining, and shopping corridors, and a stones throw from the Bowery Hotel, this home offers volume, light, and a rare indoor–outdoor connection in a move-in-ready loft setting.

Loft-style one-bedroom with double-height ceilings, oversized windows, and private garden in the ... is located in New York, New York in the 10003 zip code.

Protect yourself from fraud. Do not send money to anyone you don't know.

Community Features

  • Elevator

Airport

  • LaGuardia

    Drive: 21 min 9.6 mi
  • Newark Liberty International

    Drive: 21 min 12.9 mi

Commuter Rail

  • 9 St (Path)

    Walk: 12 min 0.7 mi
  • 14 St (Path)

    Walk: 15 min 0.8 mi
  • Christopher St

    Walk: 19 min 1.0 mi
  • 23 St (Path)

    Drive: 4 min 1.2 mi
  • 33 St (Path)

    Drive: 6 min 1.7 mi

Transit / Subway

  • Astor Place

    Walk: 2 min 0.1 mi
  • 8 St-Nyu

    Walk: 3 min 0.2 mi
  • 3 Avenue

    Walk: 6 min 0.3 mi
  • Bleecker Street

    Walk: 8 min 0.4 mi
  • Lower East Side-2 Avenue

    Walk: 8 min 0.4 mi

Universities

Parks & Recreation

  • Merchant's House Museum

    Walk: 4 min 0.2 mi
  • Washington Square Park

    Walk: 9 min 0.5 mi
  • Tompkins Square Park

    Walk: 9 min 0.5 mi
  • Union Square Park

    Walk: 9 min 0.5 mi
  • Asser Levy Playground

    Drive: 3 min 1.1 mi

Shopping Centers & Malls

Military Bases

Similar Nearby Apartments with Available Units

  • = This Property
  • = Similar Nearby Apartments

Ratings

Report an Issue

Loft-style one-bedroom with double-height ceilings, oversized windows, and private garden in the ...
I would like to...
0 out of 400 characters
(646) 320-6466

Submitting Request

Thank You

Your email has been sent.