Last Updated: 1 Day Ago

Total Monthly Price

$2,975

Beds

1

Baths

1

* Price shown is total price based on community-supplied monthly required fees. Excludes user-selected optional fees and variable or usage-based fees and required charges due at or prior to move-in or at move-out. View Fees and Policies for details. Price, availability, fees, and any applicable rent special are subject to change without notice.

Note: Prices and availability subject to change without notice.

Lease Terms

Contact office for Lease Terms

Fees and Policies

The fees below are based on community-supplied data and may exclude additional fees and utilities. Use the calculator to add these fees to the base rent.

  • One-Time Basics
    • Due at Move-In
      • Security Deposit - Refundable
        $2,975

Property Fee Disclaimer: Based on community-supplied data and independent market research. Subject to change without notice. May exclude fees for mandatory or optional services and usage-based utilities.

About 1576 Cambridge St

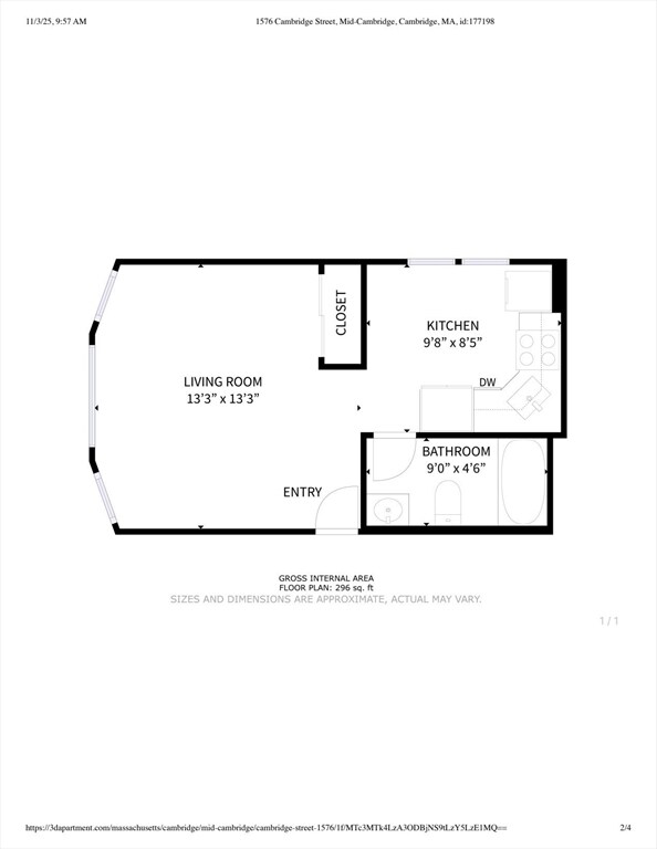
Brand New Renovation. Charming Studio Apartment in the Heart of Cambridge. Perfect blend of charm,space,and comfort in this beautifully designed studio apartment,ideally located in one of Cambridge’s most desirable neighborhoods.W/D in unit.Step inside and you’ll be greeted by a spacious,open layout with a thoughtfully designed living area that makes excellent use of space. The high ceilings and wooden flooring create an inviting atmosphere,while large windows fill the home with natural light. The kitchen is both stylish and functional with stainless appliances and granite counters. The bedroom area provides comfort and warmth with its wooden finishes,giving the space a cozy yet elegant touch. The full bathroom is well-appointed,offering convenience and ease. This home truly combines charm and efficient use of space making it a rare find in Cambridge. Owners willing to waive LMR being paid up front for qualified applicants. MLS# 73486568

1576 Cambridge St is located in Cambridge, Massachusetts in the 02138 zip code.

Protect yourself from fraud. Do not send money to anyone you don't know.

Floorplan Amenities

  • Dishwasher
  • Disposal
  • Microwave
  • Range
  • Refrigerator

Airport

  • General Edward Lawrence Logan International

    Drive: 14 min 6.2 mi

Commuter Rail

  • Porter Square

    Drive: 3 min 1.4 mi
  • North Station

    Drive: 8 min 3.1 mi
  • Yawkey

    Drive: 6 min 3.4 mi
  • Back Bay Station

    Drive: 12 min 3.5 mi
  • Boston Landing

    Drive: 14 min 8.1 mi

Transit / Subway

  • Harvard Square Station

    Walk: 13 min 0.7 mi
  • Union Square

    Walk: 16 min 0.9 mi
  • Central Square Station

    Walk: 17 min 0.9 mi
  • Gilman Square

    Drive: 4 min 1.9 mi
  • East Somerville

    Drive: 7 min 2.5 mi

Universities

Parks & Recreation

  • Harvard Museum of Natural History

    Walk: 12 min 0.7 mi
  • Mineralogical and Geological Museum

    Walk: 12 min 0.7 mi
  • Longfellow National Historic Site

    Walk: 21 min 1.1 mi
  • Harvard-Smithsonian Center for Astrophysics

    Drive: 3 min 1.3 mi
  • Charles River Reservation

    Drive: 8 min 2.9 mi

Shopping Centers & Malls

Military Bases

Similar Nearby Apartments with Available Units

  • = This Property
  • = Similar Nearby Apartments

Ratings

Walkability

NR
Not Rated

Transit

NR
Not Rated

Bikeability

NR
Not Rated
Report an Issue

1576 Cambridge St

Submitting Request

Thank You

Your email has been sent.

}