Last Updated: 8 Hrs. Ago

Monthly Rent

$1,800

Beds

4

Baths

2

* Price shown is base rent. Excludes user-selected optional fees and variable or usage-based fees and required charges due at or prior to move-in or at move-out. View Fees and Policies for details. Price, availability, fees, and any applicable rent special are subject to change without notice.

Note: Prices and availability subject to change without notice.

Lease Terms

Contact office for Lease Terms

Expenses

  • Security Deposit - Refundable: $1800

About 7502 E 36th St N

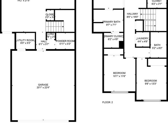
NEW HOME CONSTRUCTION! PHOTOS COMING SOON... current images resemble like build and blueprint. LOCATION... Rock Road offers proximity to shopping, dining, gyms, offices, community centers, and quick highway access to K96. The home offers open concept living on the main level including pantry, picture windows, coat closet, and half bath. Upstairs, enjoy the comfort and space of four bedrooms, 2 full bathrooms, 2 walk-in closets, 2 bifold closets, linen closet, and the convenience of having a laundry room on the bedroom level. Pricing based on a 12-month lease agreement and does not include cost of monthly Resident Benefits Package. No Smoking on property. Resident responsible for electricity, gas, water/sewage, cable, internet, etc.

7502 E 36th St N is located in Wichita, Kansas in the 67226 zip code.

Protect yourself from fraud. Do not send money to anyone you don't know.

$1,522 / month $245,000 Listing Price
4 Beds |3 Baths | 2,558 Sq Ft
$1,795 / month $285,000 Listing Price
4 Beds |4 Baths | 2,538 Sq Ft
$1,535 / month $240,000 Listing Price
4 Beds |3 Baths | 2,088 Sq Ft

Pet Policy

  • Cats Allowed

Airport

  • Wichita Dwight D Eisenhower Ntl

    Drive: 26 min 17.4 mi

Universities

Parks & Recreation

  • Great Plains Nature Center

    Drive: 6 min 2.3 mi
  • Chisholm Creek Park

    Drive: 4 min 2.8 mi
  • Claude Lambe Park

    Drive: 9 min 4.7 mi
  • Dr. Glen Dey (Grove) Park

    Drive: 8 min 4.8 mi
  • Edgemoor Park

    Drive: 9 min 4.8 mi

Shopping Centers & Malls

Military Bases

Schools

Data provided by GreatSchools.org 2025 © 2025. All rights reserved.

Similar Nearby Apartments with Available Units

  • = This Property
  • = Similar Nearby Apartments

Ratings

Report an Issue

7502 E 36th St N
I would like to...
0 out of 400 characters
(316) 400-2053

Submitting Request

Thank You

Your email has been sent.