Last Updated: 1 Day Ago

Monthly Rent

$2,200

Beds

3

Baths

2.5

* Price shown is base rent. Excludes user-selected optional fees and variable or usage-based fees and required charges due at or prior to move-in or at move-out. View Fees and Policies for details. Price, availability, fees, and any applicable rent special are subject to change without notice.

Note: Prices and availability subject to change without notice.

Lease Terms

Contact office for Lease Terms

Expenses

  • Security Deposit - Refundable: $2200

About 102 Weatherstone Square Dr

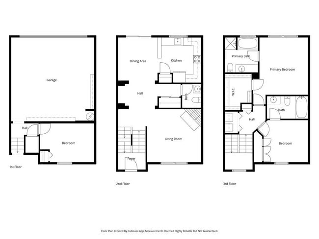
Discover comfort,convenience,and style in this move-in ready 3-bedroom,2.5-bath townhouse located in a desirable swim/tennis community featuring a pool,playground,walking trails,and a large neighborhood park. The open floor plan welcomes you with bright living and dining areas showcasing beautiful vinyl flooring,crown molding,and plantation blinds. Step through the glass door to your private deck—a sunny retreat perfect for morning coffee or evening relaxation. The kitchen overlooks the deck and has been thoughtfully refreshed with brand-new countertops,a new sink,freshly painted walls,white cabinetry,tiled floors,and brand-new stainless steel appliances—all included. Upstairs,the primary suite features a walk-in closet and private bathroom,while a conveniently located laundry closet with washer and dryer sits in the hallway. A second upstairs bedroom includes its own full bath,and both upstairs bedrooms,along with the staircase,are fully carpeted for added comfort. The lower-level third bedroom offers flexibility as a guest suite,home office,or media room. Enjoy low-maintenance living with trash service and grounds maintenance included,along with the convenience of a 2-car garage and guest parking. Ideally located within walking distance to shopping,schools,and gyms,and just minutes from downtown Woodstock,Hwy 92,I-575,GA-400,and Dupree Park. Don’t miss this incredible opportunity to make this townhouse your home! MLS ID 7696708

102 Weatherstone Square Dr is located in Woodstock, Georgia in the 30188 zip code.

Protect yourself from fraud. Do not send money to anyone you don't know.

Floorplan Amenities

  • Dishwasher
  • Disposal
  • Microwave
  • Oven
  • Range
  • Refrigerator

Pet Policy

  • Dogs and Cats Allowed

Universities

Parks & Recreation

  • Chattahoochee Nature Center

    Drive: 23 min 11.7 mi
  • Wills Park

    Drive: 24 min 11.9 mi

Shopping Centers & Malls

Military Bases

Schools

Data provided by GreatSchools.org 2025 © 2025. All rights reserved.

Similar Nearby Apartments with Available Units

  • = This Property
  • = Similar Nearby Apartments

Ratings

Report an Issue

102 Weatherstone Square Dr
I would like to...
0 out of 400 characters
(770) 750-2868

Submitting Request

Thank You

Your email has been sent.