Last Updated: 1 Day Ago

Monthly Rent

$2,400

Beds

3

Baths

2

* Price shown is base rent. Excludes user-selected optional fees and variable or usage-based fees and required charges due at or prior to move-in or at move-out. View Fees and Policies for details. Price, availability, fees, and any applicable rent special are subject to change without notice.

Note: Prices and availability subject to change without notice.

Lease Terms

Contact office for Lease Terms

About 3040 Clearbrook Dr

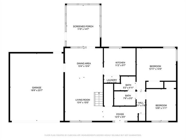
This cute Cape Cod sits in a quiet East Cobb spot with 3 bedrooms & 2 full baths. Inside,you step into a home that feels fresh. New floors,clean carpet,and updated baths make it easy to move right in. The family room opens to the dining area,giving you space to relax or host. The white kitchen shines with granite counters,a tile backsplash,and stainless steel appliances. Two bedrooms sit on the main floor. Upstairs,you find a large owner suite with a loft that has wood beams and a fireplace. It feels like a true retreat. Convenient to shops,restraurants,Truist Park,and both I-75 and I-285. Fuller’s Park is down the road,and nearby clubs offer swim and tennis. Whether you start your day on the screened porch with coffee or end the day enjoying the fenced back yard with kids or pets,it is a perfect retreat.

3040 Clearbrook Dr is located in Marietta, Georgia in the 30068 zip code.

Protect yourself from fraud. Do not send money to anyone you don't know.

Floorplan Amenities

  • Dishwasher
  • Oven
  • Refrigerator

Pet Policy

  • Dogs and Cats Allowed

Commuter Rail

  • Atlanta

    Drive: 24 min 14.8 mi

Transit / Subway

  • Sandy Springs Station

    Drive: 19 min 9.2 mi
  • North Springs

    Drive: 22 min 10.2 mi
  • Dunwoody

    Drive: 21 min 10.4 mi
  • Medical Center

    Drive: 23 min 12.0 mi
  • Buckhead

    Drive: 29 min 19.3 mi

Universities

Parks & Recreation

  • Chattahoochee River NRA - Cochran Shoals / Sope Creek

    Drive: 6 min 3.1 mi
  • Marietta Tree Keepers

    Drive: 12 min 6.1 mi
  • Chattahoochee Nature Center

    Drive: 12 min 6.2 mi
  • Sandy Springs Historic Site

    Drive: 18 min 8.0 mi
  • Big Trees Forest Preserve

    Drive: 21 min 10.2 mi

Shopping Centers & Malls

Military Bases

Schools

Data provided by GreatSchools.org 2025 © 2025. All rights reserved.

Similar Nearby Apartments with Available Units

  • = This Property
  • = Similar Nearby Apartments

Ratings

Report an Issue

3040 Clearbrook Dr
I would like to...
0 out of 400 characters
(678) 687-4024

Submitting Request

Thank You

Your email has been sent.