Last Updated: 3 Hrs. Ago

Monthly Rent

$4,200

Beds

1

Baths

1

* Price shown is base rent. Excludes user-selected optional fees and variable or usage-based fees and required charges due at or prior to move-in or at move-out. View Fees and Policies for details. Price, availability, fees, and any applicable rent special are subject to change without notice.

Note: Prices and availability subject to change without notice.

Lease Terms

Contact office for Lease Terms

Fees and Policies

The fees below are based on community-supplied data and may exclude additional fees and utilities. Use the calculator to add these fees to the base rent.

  • One-Time Basics
    • Due at Move-In
      • Security Deposit - Refundable
        $4,200

Property Fee Disclaimer: Based on community-supplied data and independent market research. Subject to change without notice. May exclude fees for mandatory or optional services and usage-based utilities.

About 1855 Industrial St

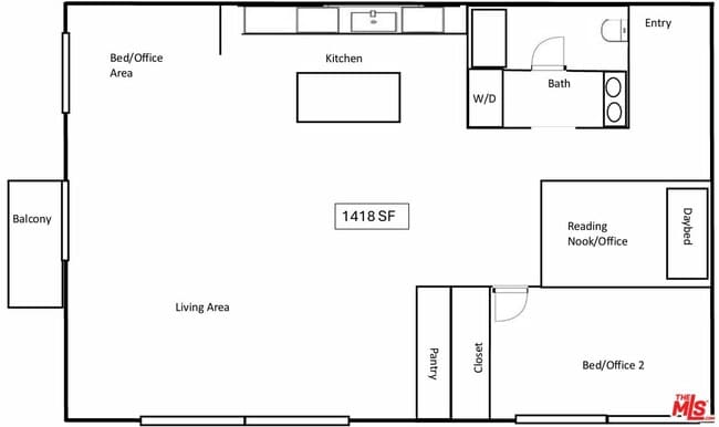
Historic 1924 Toy Factory live/work UNFURNISHED loft in the heart of the highly desirable Arts District. This unique 3rd floor CORNER loft features 1418sf of space, with 11-foot tall ceilings, concrete floors, and massive vintage factory windows with a balcony off the living area. This true industrial loft features a separated main bedroom with closet storage, platformed reading/workspace nook, and spacious bathroom with washer and dryer. The open plan kitchen features a stainless steel island with additional storage, and flows into the living/dining area. The living area features a glass casement door that leads out onto a balcony, extra hidden storage behind barn doors, and a great flexible layout. Central heat and AC throughout. Rent INCLUDES 2 TANDEM COVERED PARKING SPACES w/ EV charger, water and trash. The beloved Toy Factory building features a stunning rooftop pool deck and cabanas, 360 degree views of DTLA, garden and lounge deck with BBQs, gym, 24/7 front desk reception, and in-building parking. You're within blocks of the best of the Arts District, including Soho House, award-winning Camelia, Bestia, Verve, The Girl & Goat, Bavel, Urth Cafe, Manuela, Hauser & Wirth, Geffen Contemporary, A&D Museum, Hanks, GROW market, Hennessy & Ingalls, Salt & Straw, Dover Street Market, Sci-Arc, Bread Lounge, as well as nearby Little Tokyo and Disney Concert Hall, The Broad, Grand Central Market and more. MLS# 26661345

1855 Industrial St is located in Los Angeles, California in the 90021 zip code.

Protect yourself from fraud. Do not send money to anyone you don't know.

Community Features

  • Fitness Center

Floorplan Amenities

  • Washer/Dryer
  • Washer/Dryer Hookup
  • Dishwasher
  • Disposal
  • Microwave
  • Refrigerator
  • Views

Security

  • Controlled Access
  • Gated

Pet Policy

  • Dogs and Cats Allowed

Airport

  • Los Angeles International

    Drive: 27 min 16.3 mi
  • Bob Hope

    Drive: 26 min 19.1 mi

Commuter Rail

  • Los Angeles

    Drive: 5 min 1.7 mi
  • Union Station

    Drive: 7 min 2.1 mi
  • Cal State La Metrolink Station

    Drive: 8 min 5.7 mi
  • Commerce

    Drive: 12 min 7.8 mi
  • Glendale

    Drive: 14 min 9.1 mi

Transit / Subway

  • Little Tokyo-Arts District

    Drive: 3 min 1.3 mi
  • Mariachi Plaza

    Drive: 4 min 1.6 mi
  • Washington Station

    Drive: 4 min 1.7 mi
  • Historic Broadway Station

    Drive: 4 min 1.8 mi
  • Pico-Aliso

    Drive: 4 min 2.0 mi

Universities

Parks & Recreation

  • Hollenbeck Lake

    Drive: 4 min 1.6 mi
  • Vista Hermosa Natural Park

    Drive: 6 min 2.8 mi
  • MacArthur Park Lake

    Drive: 7 min 3.4 mi
  • Echo Park Lake

    Drive: 7 min 3.5 mi
  • Augustus Hawkins Natural Park

    Drive: 7 min 3.9 mi

Shopping Centers & Malls

Military Bases

Similar Nearby Apartments with Available Units

  • = This Property
  • = Similar Nearby Apartments

Ratings

Report an Issue

1855 Industrial St
I would like to...
0 out of 400 characters
(310) 869-2655

Submitting Request

Thank You

Your email has been sent.

}