Last Updated: 5 Hrs. Ago

Monthly Rent

$1,350

Beds

1

Baths

1

* Price shown is base rent. Excludes user-selected optional fees and variable or usage-based fees and required charges due at or prior to move-in or at move-out. View Fees and Policies for details. Price, availability, fees, and any applicable rent special are subject to change without notice.

Note: Prices and availability subject to change without notice.

Lease Terms

Contact office for Lease Terms

Expenses

  • Security Deposit - Refundable: $1350

About 36215 Ft Bend County Line Rd

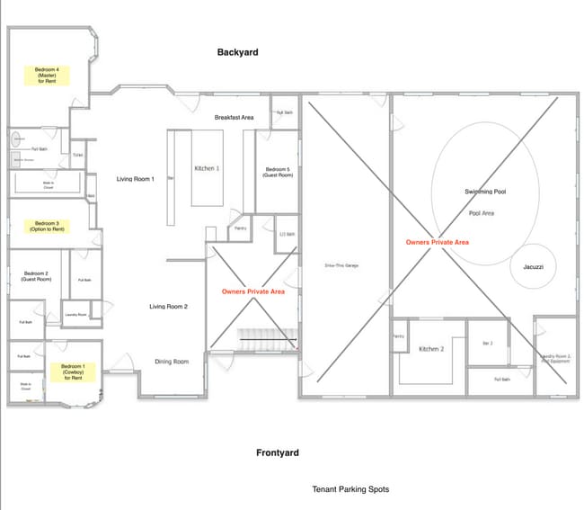
Large, tranquil home nestled in the countryside of Brookshire, TX. Just a quick 5- minute drive to I-10 and only 8 minutes to Fulshear. We have 3 rooms available for rent, and 2 rooms available for occasional guests. There are spacious common areas and a large kitchen with granite countertops, gas stovetop, and bar area. The house sits on a 3.5 acre property with various sitting areas to bird watch and gaze at the neighboring animals. Sunsets here feel truly magical, with open skies and gentle breezes that take away the stresses of everyday life. The Cowboy Bedroom (Bedroom 1) includes a large Queen Size Bed, your own Private Bathroom, Walk-in Closet, and AC Thermostat. This is a 10,000-square foot home with the owners residing privately on a separate side of the home, creating a comfortable shared-living setup where everyone has their own space. This thoughtfully designed home includes two friendly resident dogs (no additional pets, please), ensuring a warm, smoke-free atmosphere surrounded by nature. All utilities are included (Internet, Water, Sewage, and Trash) except for Electricity and Gas. The residing tenants will split the total costs each month, including monthly housekeeping. If you're craving a calm, nature-filled retreat with modern convenience just minutes away, this could be the perfect place to call home. Reach out today to learn more or schedule a visit—you'll want to experience the serenity firsthand!

36215 Ft Bend County Line Rd is located in Brookshire, Texas in the 77423 zip code.

Protect yourself from fraud. Do not send money to anyone you don't know.

Floorplan Amenities

  • Washer/Dryer
  • Washer/Dryer Hookup
  • Dishwasher

Universities

Parks & Recreation

  • San Felipe de Austin State Historic Site

    Drive: 24 min 16.3 mi
  • Stephen F. Austin State Park

    Drive: 29 min 17.8 mi

Shopping Centers & Malls

Schools

GreatSchools Rating

Private Elementary, Middle & High School

94 Students
(281) 392-4477
Grades 3-12

Data provided by GreatSchools.org 2025 © 2025. All rights reserved.

Similar Nearby Apartments with Available Units

  • = This Property
  • = Similar Nearby Apartments

Ratings

Report an Issue

36215 Ft Bend County Line Rd
I would like to...
0 out of 400 characters
(713) 533-2522

Submitting Request

Thank You

Your email has been sent.