Last Updated: 1 Day Ago

Monthly Rent

$3,775

Beds

3

Baths

3.5

* Price shown is base rent. Excludes user-selected optional fees and variable or usage-based fees and required charges due at or prior to move-in or at move-out. View Fees and Policies for details. Price, availability, fees, and any applicable rent special are subject to change without notice.

Note: Prices and availability subject to change without notice.

Lease Terms

Contact office for Lease Terms

Fees and Policies

The fees below are based on community-supplied data and may exclude additional fees and utilities.

  • One-Time Basics
    • Due at Move-In
      • Security Deposit - Refundable
        Charged per unit.
        $3,975
        Charged per unit.

Property Fee Disclaimer: Based on community-supplied data and independent market research. Subject to change without notice. May exclude fees for mandatory or optional services and usage-based utilities.

About 1819 Chessland St

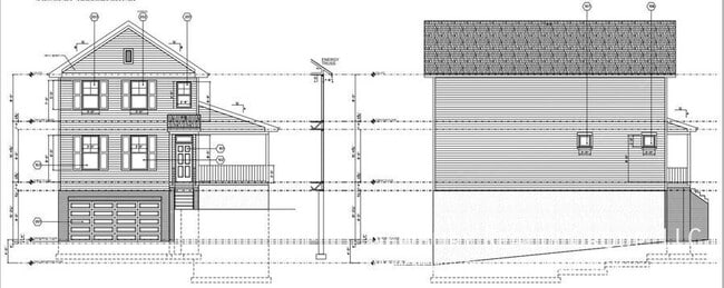
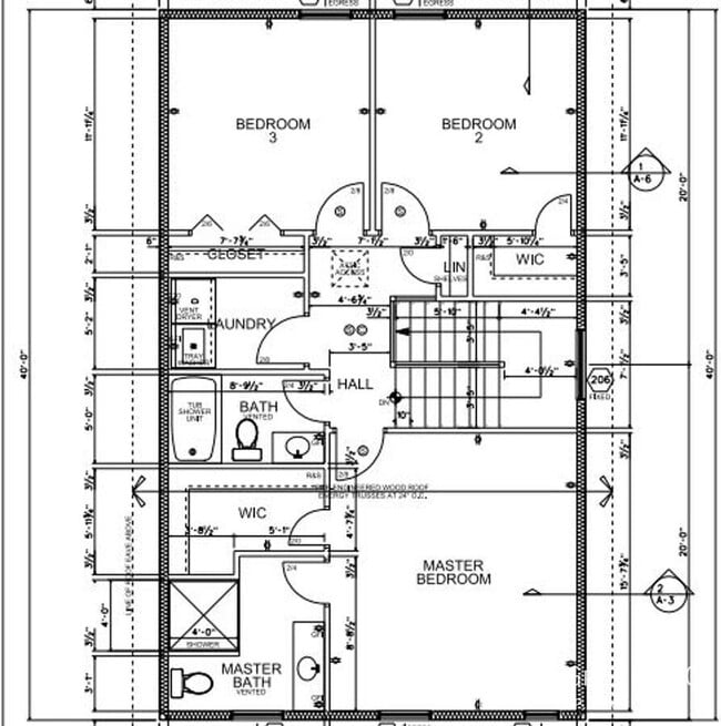
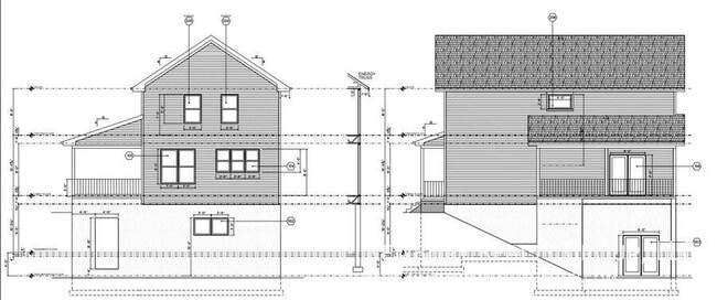
Now available for rent, this newly constructed luxury home offers the space, privacy, and high-end finishes of ownership, without the long-term commitment. Be the first resident to enjoy this thoughtfully designed new construction home, featuring a spacious layout, premium materials, and modern amenities throughout. With multiple living areas, an attached 2-car integral garage, and a fully finished basement, this home provides flexibility for today’s lifestyles, whether working from home, hosting guests, or simply enjoying additional living space. The kitchen is appointed with quartz countertops, contemporary cabinetry, stainless steel appliances, and flows seamlessly into open-concept living and dining areas ideal for both everyday living and entertaining. Large windows throughout the home provide abundant natural light, while modern lighting and finishes create a clean, elevated aesthetic. The primary bedroom suite features a walk-in shower and generous closet space. Additional bedrooms are well-sized, and the home includes a conveniently located top-floor laundry area near all bedrooms. The fully finished basement includes a walk-in shower and is well-suited for a guest suite, home office, gym, or media room. Two private porches offer additional outdoor living space. This home is well-suited for professionals, medical staff, relocating households, or those seeking a high-quality rental option while between homes. Key Features Include: ~New construction home ~3 bedrooms / 3.5 bathrooms ~2-car integral garage ~Fully finished basement with walk-in shower ~Quartz countertops in kitchen and bathrooms ~Stainless steel appliances ~Luxury vinyl plank flooring in main living areas ~Carpeted bedrooms ~Open-concept main living level ~Top-floor laundry near bedrooms ~Two private porches ~Energy-efficient construction and modern mechanical systems ~Contemporary lighting and fixtures ~Ample closet and storage space Location Highlights – Westwood / Oakwood ~Convenient access to: ~Downtown Pittsburgh ~South Side ~The Mall at Robinson ~Settlers Ridge ~Pittsburgh International Airport Nearby major hospitals include: ~Allegheny General Hospital (AGH) ~UPMC Mercy ~UPMC Presbyterian ~UPMC Shadyside An ideal location for commuters, medical professionals, and those seeking proximity to major employers, shopping, dining, and travel routes. Lease Details: ~Application fee: $35 per applicant (18+) ~Income requirement: 3x monthly rent ~Credit and background checks required ~Residents responsible for all utilities ~No pets Private showings are available by appointment. Qualified applicants are encouraged to inquire.

New Construction 3BR Luxury Home is located in Pittsburgh, Pennsylvania in the 15205 zip code.

Protect yourself from fraud. Do not send money to anyone you don't know.

Floorplan Amenities

  • Dishwasher

Airport

  • Pittsburgh International

    Drive: 23 min 14.5 mi

Commuter Rail

  • Pittsburgh Amtrak Station

    Drive: 10 min 5.3 mi

Transit / Subway

  • Shiras

    Drive: 8 min 2.9 mi
  • Belasco

    Drive: 9 min 2.9 mi
  • Hampshire

    Drive: 9 min 3.3 mi
  • Fallowfield

    Drive: 10 min 3.3 mi
  • Westfield

    Drive: 10 min 3.4 mi

Universities

Parks & Recreation

  • Pittsburgh Botanic Garden

    Walk: 18 min 1.0 mi
  • Carnegie Science Center

    Drive: 10 min 3.7 mi
  • Allegheny Commons Park

    Drive: 10 min 4.0 mi
  • National Aviary

    Drive: 12 min 4.4 mi
  • Point State Park

    Drive: 9 min 4.8 mi

Shopping Centers & Malls

Military Bases

Schools

GreatSchools Rating

Private Elementary & Middle School

(412) 928-2494
Grades K-8

Data provided by GreatSchools.org 2025 © 2025. All rights reserved.

Similar Nearby Apartments with Available Units

  • = This Property
  • = Similar Nearby Apartments

Ratings

Walkability

NR
Not Rated

Transit

NR
Not Rated

Bikeability

NR
Not Rated
Report an Issue

New Construction 3BR Luxury Home
I would like to...
0 out of 400 characters
(412) 444-4400

Submitting Request

Thank You

Your email has been sent.

}