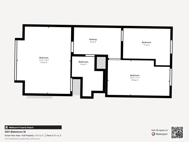
Virtual Tou: This Philadelphia residence at 5581 Blakemore St offers living space across two floors. The home features three bedrooms, including a spacious primary bedroom, and one bathroom. The kitchen has been updated with wooden cabinetry, a black electric range, and a refrigerator. Flooring throughout the home varies, with durable vinyl plank in the kitchen and some living areas. The property boasts beautiful hardwood floors in the bedrooms and some other areas, adding classic charm. Large windows in the bedrooms and living areas allow for plenty of natural light, enhancing the home's bright and airy feel. The home also includes an enclosed porch area, providing extra flexible space. The bathroom includes a combination tub and shower, with tiled flooring and partial wall tiling. The home's layout includes a hallway for easy navigation between rooms. The neutral color palette of the walls provides a blank canvas for personalization, while white trim and baseboards add a clean, finished look to each room. Completing the package is a private rear yard, perfect for outdoor enjoyment and relaxation. Qualifications / General Screening Criteria: • Rental applications must be complete, correct and verified. • Gross monthly income must provable and be at least 3 times rent or tenant must have a housing choice voucher. • Applicants must have a proven history of on-time rental payments not including the COVID-19 emergency period. • Applicants must have a good relevant credit history or tenant must have a housing choice voucher. • Applicants must have no evictions in the last 4 years except during the COVID-19 emergency period. SEE VIDEO WALKTHROUGH! Real Estate Management Advisors, LLC - REMA Licensed Real Estate Broker Property Manager Servicing Commercial & Residential Properties in the Philadelphia area. Check out more properties for rent at Cats/Small dogs allowed
3-bed Philly home with hardwood floors, an... is located in Philadelphia, Pennsylvania in the 19138 zip code.
 
             
             
             
             
             
             
             
             
             
             
             
             
             
             
             
             
             
             
            