Last Updated: 2 Wks. Ago

Total Monthly Price

No Availability

Beds

3

Baths

2.5

* Price shown is total price based on community-supplied monthly required fees. Excludes user-selected optional fees and variable or usage-based fees and required charges due at or prior to move-in or at move-out. View Fees and Policies for details. Price, availability, fees, and any applicable rent special are subject to change without notice. Note: Price and availability subject to change without notice. Note: Based on community-supplied data and independent market research. Subject to change without notice.

Lease Terms

Contact office for Lease Terms

About 1037 Turnstone Dr

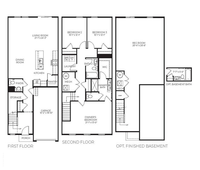
Stunning 2- story townhome plan featuring 2,717 square feet of open living space, 3 bedrooms, 2.5 baths and a finished basement! The convenience of townhome living meets the amenities of a single-family home. The main level eat-in kitchen with large pantry and modern island opens to an airy, bright dining and living room. The second level features 3 bedrooms, all with generous closet space, a hall bath, upstairs laundry, and spacious owner's suite that highlights a walk-in closet and owner's bath with double vanity. The finished rec room is the perfect additional space for both entertaining and storage. Note: Photos are for representation purposes only and the unit is not furnished as shown in the pictures. Video of the unit is available on request.

1037 Turnstone Dr is located in Fogelsville, Pennsylvania in the 18051 zip code.

Contact

Floorplan Amenities

  • Washer/Dryer
  • Air Conditioning
  • Smoke Free
  • Double Vanities
  • Pantry
  • Eat-in Kitchen
  • Kitchen
  • Basement
  • Walk-In Closets
  • Furnished

Parking

  • Garage Parking

Pet Policy

No Pets Allowed

Airport

  • Lehigh Valley International

    Drive: 21 min 12.6 mi

Universities

Parks & Recreation

  • Trexler Nature Preserve

    Drive: 20 min 6.8 mi
  • Lehigh Valley Zoo

    Drive: 25 min 7.3 mi
  • Da Vinci Science Center

    Drive: 12 min 7.5 mi
  • Pool Wildlife Sanctuary

    Drive: 16 min 8.5 mi
  • Bear Creek Ski and Recreation Area

    Drive: 19 min 9.2 mi

Shopping Centers & Malls

Similar Nearby Apartments with Available Units

  • = This Property
  • = Similar Nearby Apartments

Ratings

Walkability

NR
Not Rated

Transit

NR
Not Rated

Bikeability

NR
Not Rated
Report an Issue

1037 Turnstone Dr
I would like to...
0 out of 400 characters

Submitting Request

Thank You

Your email has been sent.

}