Last Updated: 1 Day Ago

Monthly Rent

$2,150

Beds

3

Baths

2

* Price shown is base rent. Excludes user-selected optional fees and variable or usage-based fees and required charges due at or prior to move-in or at move-out. View Fees and Policies for details. Price, availability, fees, and any applicable rent special are subject to change without notice.

Note: Prices and availability subject to change without notice.

Lease Terms

Contact office for Lease Terms

Expenses

  • Security Deposit - Refundable: $1500

About 816 N Main St

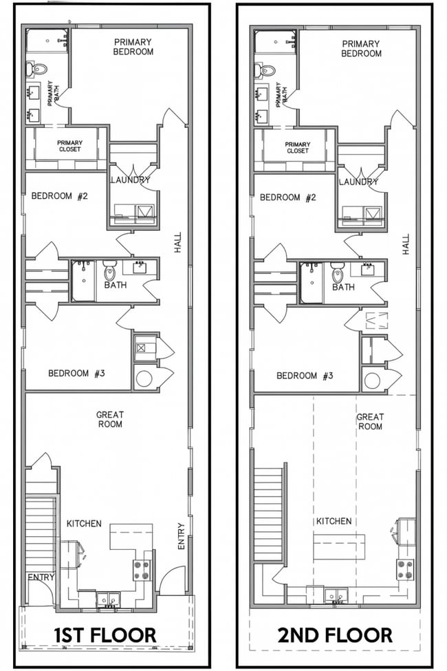
Welcome to The Flats on Main, where modern design meets downtown living in the heart of Broken Arrow’s Rose District. This brand-new 3-bedroom, 2-bath residence offers 1,334 sq. ft. of thoughtfully designed space, featuring an open floor plan, high-end finishes, and walkable access to everything Main Street has to offer. Step inside and you’ll find bright natural light, luxury vinyl plank flooring, quartz countertops, stainless steel appliances, and a spacious master suite designed for comfort and style. Every detail has been crafted to create a home that feels both sophisticated and functional — perfect for professionals, small families, or anyone who wants to live in the center of it all. Property Highlights 3 Bedrooms | 2 Bathrooms | 1,334 Sq. Ft. Brand-New Construction — Energy-Efficient & Move-In Ready Designer Kitchen with Quartz Countertops & Stainless Appliances Open-Concept Living & Dining with Premium Finishes Walkable Access to Restaurants, Coffee Shops & Entertainment Private Parking | In-Unit Laundry Located directly on Main Street, this home offers unmatched walkability in the Rose District, Broken Arrow’s premier destination for dining, shopping, and community events. Enjoy the best of city living with small-town charm

3 Bed | 2 Bath Luxury Duplex | The Flats o... is located in Broken Arrow, Oklahoma in the 74012 zip code.

Protect yourself from fraud. Do not send money to anyone you don't know.

$1,909 / month $306,226 Listing Price
4 Beds |2 Baths | 1,651 Sq Ft
$2,125 / month $359,900 Listing Price
3 Beds |2.5 Baths | 1,700 Sq Ft
$1,714 / month $275,000 Listing Price
3 Beds |2.5 Baths | 1,448 Sq Ft

Airport

  • Tulsa International

    Drive: 24 min 16.1 mi

Universities

Parks & Recreation

  • Washington Irving Memorial Park and Arboretum

    Drive: 20 min 11.9 mi
  • Oklahoma Aquarium

    Drive: 19 min 12.4 mi

Shopping Centers & Malls

Similar Nearby Apartments with Available Units

  • = This Property
  • = Similar Nearby Apartments

Ratings

Report an Issue

3 Bed | 2 Bath Luxury Duplex | The Flats o...
I would like to...
0 out of 400 characters
(918) 383-0240

Submitting Request

Thank You

Your email has been sent.