Last Updated: 6 Days Ago

Monthly Rent

$650

Beds

Studio

Baths

1

* Price shown is base rent. Excludes user-selected optional fees and variable or usage-based fees and required charges due at or prior to move-in or at move-out. View Fees and Policies for details. Price, availability, fees, and any applicable rent special are subject to change without notice.

Note: Prices and availability subject to change without notice.

Lease Terms

12 Months

Expenses

About 25 N Congress St

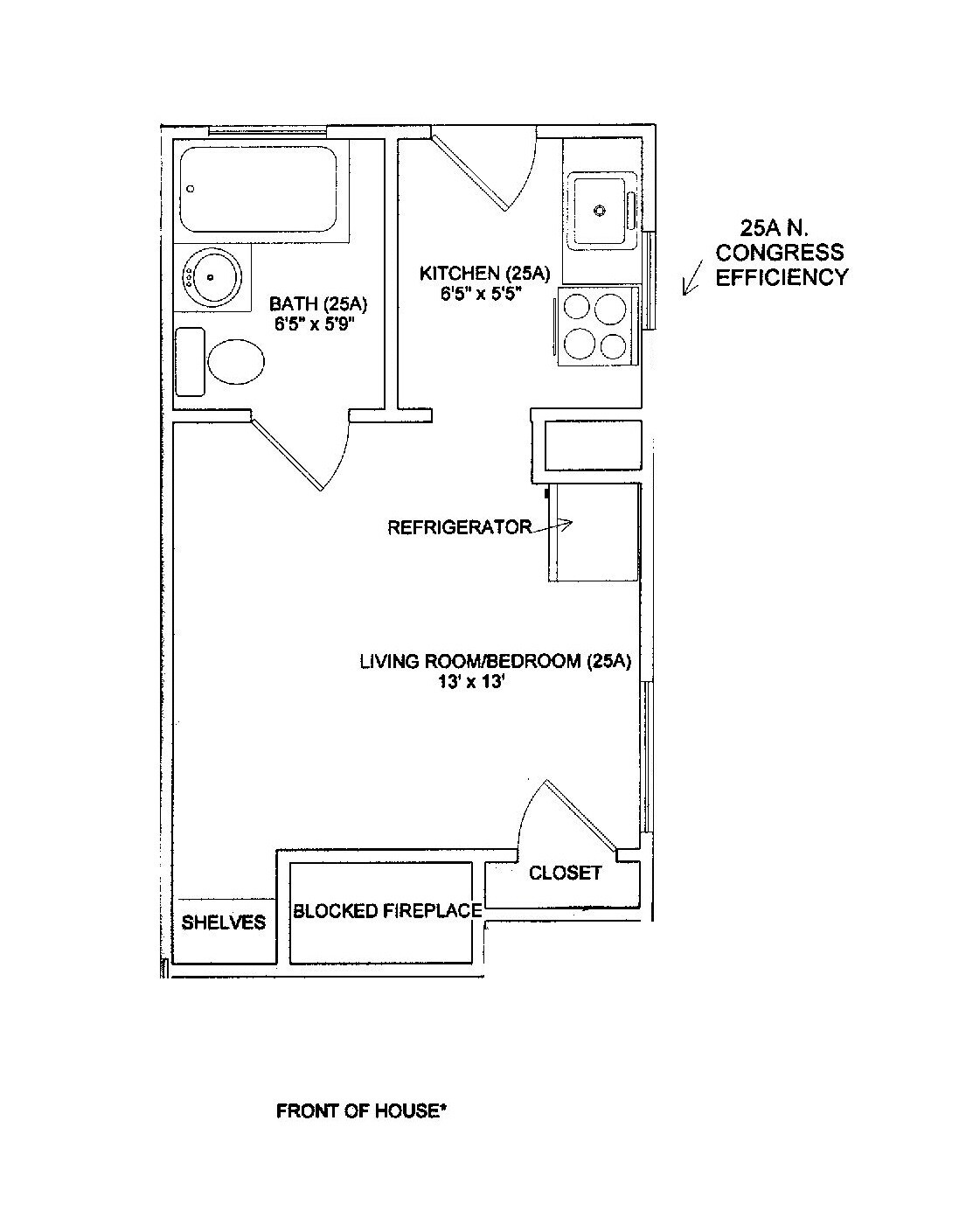
COLLEGE HOUSING / OHIO UNIVERSITY N. Congress St!!!! Studio apt (25A) Block over from Court St./ uptown. Close to campus. Laundry facilities on site. Lease starts May 3, 2026, ends Sunday, May 2, 2027.

25 N Congress St is located in Athens, Ohio in the 45701 zip code.

Community Features

  • Laundry Facilities

Floorplan Amenities

  • Air Conditioning
  • Smoke Free
  • Oven
  • Range
  • Refrigerator

Pet Policy

No Pets Allowed

Universities

Parks & Recreation

  • Strouds Run State Park

    Drive: 16 min 5.8 mi
  • Wayne National Forest-Athens District

    Drive: 12 min 7.4 mi
  • Hocking Woods Nature Center

    Drive: 19 min 11.9 mi

Shopping Centers & Malls

Similar Nearby Apartments with Available Units

  • = This Property
  • = Similar Nearby Apartments

Ratings

Report an Issue

25 N Congress St
I would like to...
0 out of 400 characters
(740) 566-5489

Submitting Request

Thank You

Your email has been sent.