Last Updated: 1 Day Ago

Monthly Rent

$1,845

Beds

3

Baths

2.5

* Price shown is base rent. Excludes user-selected optional fees and variable or usage-based fees and required charges due at or prior to move-in or at move-out. View Fees and Policies for details. Price, availability, fees, and any applicable rent special are subject to change without notice.

Note: Prices and availability subject to change without notice.

Lease Terms

Contact office for Lease Terms

About 10517 Brookside Reserve Rd

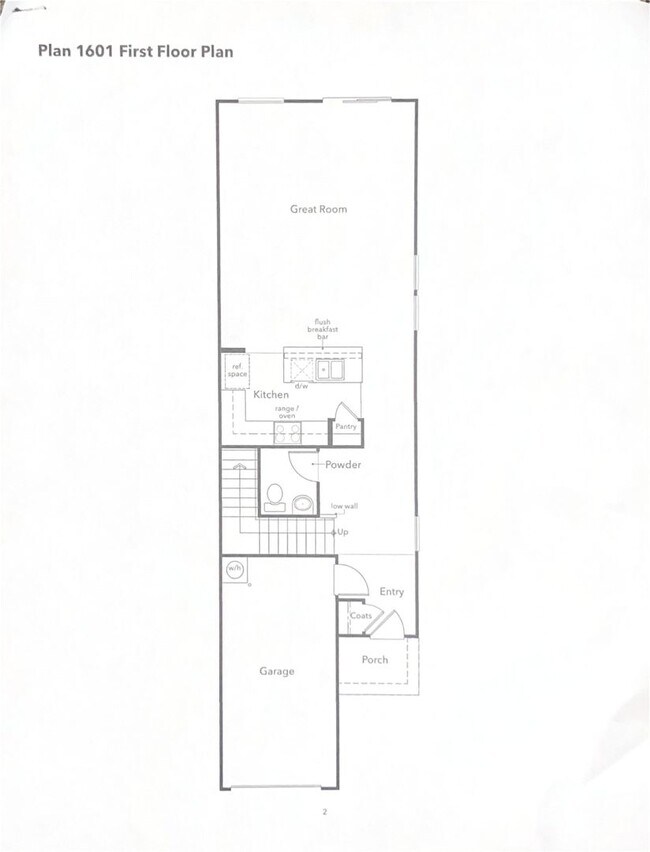
Welcome to your new home in Wake Forest! This newly constructed, end unit townhouse boasts an open layout with 3 bedrooms and 2.5 bathrooms. The spacious landing and abundant natural light throughout the home create a warm and inviting atmosphere. The kitchen is equipped with granite countertops and energy-efficient stainless steel appliances. The property is situated on a corner lot within an HOA community, offering a yard and a patio for outdoor enjoyment. The location can't be beat when you are ideally located off of Hwy 1 (Capital Blvd), with easy access to Hwy 98 and less than 15 minutes from downtown Wake Forest. Shopping and dining options are just a short walk away, and even more options are available within a 5-minute drive. Experience the perfect blend of comfort, convenience, and modern living in this beautiful Wake Forest townhouse. *OFFERING WAIVED APPLICATION FEES & $150 MOVE IN PROMOTION *Blinds will be installed prior to a tenant moving in. *No smoking *Pets are negotiable *Utilities separate *Leasing Broker: hayden@ *Applications must be submitted at and are refunded if not reviewed due to an earlier applicant being approved *Tenants are enrolled in our Resident Benefits Package which includes quarterly HVAC filters mailed directly to the home *Property Manager: Keyrenter Raleigh Property Management *Application processing time is 1-3 business days. Please review Keyrenter's Application Criteria prior to applying *Other terms, fees, and conditions may apply. All information is deemed reliable but not guaranteed and is subject to change Keyrenter Raleigh 4242 Six Forks Rd. Ste 1550, Raleigh, NC 27609

**OFFERING WAIVED APPLICATION FEES & $150 ... is located in Wake Forest, North Carolina in the 27587 zip code.

Protect yourself from fraud. Do not send money to anyone you don't know.

Special Features

  • Washer
  • Less than 5 Minutes from Shopping and Dining in Wake Forest
  • Open Layout
  • Natural Light Throughout
  • Walking Distance from Shopping and Dining Options
  • Electric Water Heater
  • Gas
  • Less than 15 Minutes from Downtown Wake Forest
  • Stainless Steel Appliances
  • Dryer
  • Easy Access to Raleigh
  • 1-Car Attached Garage
  • Central Cooling
  • Conveniently Located off of Hwy 1 (Capital Blvd)
  • Energy Efficient Appliances
  • HOA Community
  • New Construction
  • Corner Lot
  • Easy Access to Hwy 98
  • End Unit
  • Granite Countertops
  • Spacious Landing
  • Yard (no fence)

Commuter Rail

  • Raleigh Union Station

    Drive: 24 min 14.2 mi

Universities

Parks & Recreation

  • North Wake Landfill District Park

    Drive: 8 min 5.3 mi
  • Durant Nature Park

    Drive: 10 min 5.9 mi
  • Annie Louise Wilkerson, MD Nature Preserve Park

    Drive: 14 min 6.9 mi
  • Blue Jay Point County Park

    Drive: 17 min 11.1 mi
  • Blue Jay Center for Environmental Education

    Drive: 17 min 11.2 mi

Shopping Centers & Malls

Schools

Data provided by GreatSchools.org 2025 © 2025. All rights reserved.

Similar Nearby Apartments with Available Units

  • = This Property
  • = Similar Nearby Apartments

Ratings

Report an Issue

**OFFERING WAIVED APPLICATION FEES & $150 ...
I would like to...
0 out of 400 characters
(919) 518-9800

Submitting Request

Thank You

Your email has been sent.