Last Updated: 1 Day Ago

Monthly Rent

$2,950

Beds

5

Baths

3.5

* Price shown is base rent. Excludes user-selected optional fees and variable or usage-based fees and required charges due at or prior to move-in or at move-out. View Fees and Policies for details. Price, availability, fees, and any applicable rent special are subject to change without notice.

Note: Prices and availability subject to change without notice.

Lease Terms

Contact office for Lease Terms

Expenses

  • Security Deposit - Refundable: $2950

About 2118 Killian Creek Dr

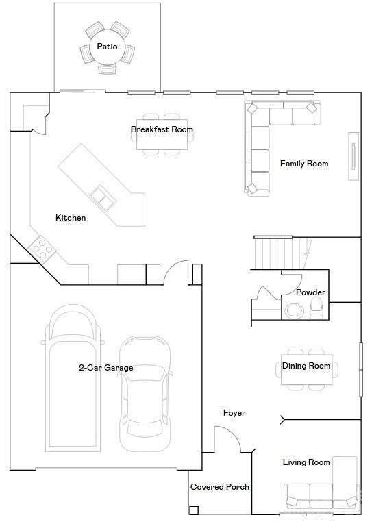
Large,rocking chair,covered front porch overlooks the community park area - Fully fenced yard - Main floor office with French doors - Huge family room with gas log fireplace - Large gourmet kitchen with white cabinets,quartz counters,and tons of counter/ cabinet space - Formal dining room - Wood floors throughout main level - Oversize Primary suite with large walk-in closet - Primary bath with walk in shower,soaking tub and raised height dual basin vanity - Generous secondary bedrooms and closets - Loft - Attached oversize garage - Large patio backs to community natural area for privacy - All appliances in place including refrigerator,washer and dryer (not warrantied) - This home is in great condition so if you are looking for a rental that actually feels like a home don't miss this opportunity! Lennar's most popular Forsyth floorplan - Call anytime for details or a private tour - Ready for immediate occupancy MLS ID CAR4336038

2118 Killian Creek Dr is located in Denver, North Carolina in the 28037 zip code.

Contact

Wendy Dickinson
CarolinaMLS#NC Copyright © 2026 Canopy Realtor® Association.

Protect yourself from fraud. Do not send money to anyone you don't know.

$3,053 / month $525,000 Listing Price
5 Beds |3.5 Baths | 3,094 Sq Ft
$2,759 / month $479,000 Listing Price
5 Beds |3.5 Baths | 3,171 Sq Ft
$2,950 / month $479,990 Listing Price
5 Beds |3.5 Baths | 3,010 Sq Ft

Pet Policy

  • Dogs and Cats Allowed

Universities

Shopping Centers & Malls

Schools

Data provided by GreatSchools.org 2025 © 2025. All rights reserved.

Similar Nearby Apartments with Available Units

  • = This Property
  • = Similar Nearby Apartments

Ratings

Report an Issue

2118 Killian Creek Dr
I would like to...
0 out of 400 characters
(704) 236-2739

Submitting Request

Thank You

Your email has been sent.