Last Updated: 7 Hrs. Ago

Monthly Rent

$1,585

Beds

3

Baths

2.5

* Price shown is base rent. Excludes user-selected optional fees and variable or usage-based fees and required charges due at or prior to move-in or at move-out. View Fees and Policies for details. Price, availability, fees, and any applicable rent special are subject to change without notice.

Note: Prices and availability subject to change without notice.

Lease Terms

Contact office for Lease Terms

About 22 S Mickley Ave

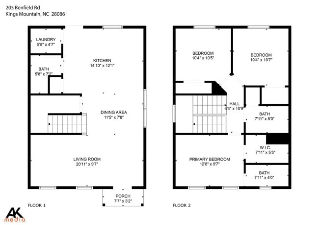
Be the first to live in this beautiful brand new 3 bed, 2 bath home located in Kings Mountain, NC. This thoughtfully designed two-story home offers modern living with a functional layout, quality finishes, and comfortable spaces throughout.The main level features an open-concept living and dining area that flows seamlessly into the kitchen, perfect for everyday living and entertaining. Upstairs, you’ll find well-sized bedrooms, including a spacious primary suite with a private bath, plus an additional full bathroom to serve the remaining bedrooms.Please note: The home is in the final stages of completion. Photos shown are from a home we built in 2025 using the same floor plan. The photos represent the same floor plan with similar finishes and are provided to give an accurate representation of the layout and style. Updated photos of this specific home will be added once construction is complete.More details and photos coming soon—don’t miss the opportunity to make this brand new home yours!

22 S Mickley Ave is located in Bessemer City, North Carolina in the 28016 zip code.

Protect yourself from fraud. Do not send money to anyone you don't know.

$1,300 / month $219,000 Listing Price
3 Beds |2 Baths | 1,080 Sq Ft
$1,589 / month $270,000 Listing Price
3 Beds |2.5 Baths | 1,216 Sq Ft
$1,426 / month $275,000 Listing Price
3 Beds |2.5 Baths | 1,366 Sq Ft

Floorplan Amenities

  • Dishwasher
  • Walk-In Closets

Pet Policy

  • Dogs and Cats Allowed

Commuter Rail

  • Gastonia Amtrak Station

    Drive: 16 min 10.2 mi

Universities

Parks & Recreation

  • Crowders Mountain State Park

    Drive: 12 min 6.2 mi
  • Schiele Museum of Natural History

    Drive: 17 min 9.7 mi

Shopping Centers & Malls

Military Bases

Schools

Data provided by GreatSchools.org 2025 © 2025. All rights reserved.

Similar Nearby Apartments with Available Units

  • = This Property
  • = Similar Nearby Apartments

Ratings

Report an Issue

22 S Mickley Ave
I would like to...
0 out of 400 characters
(980) 349-7876

Submitting Request

Thank You

Your email has been sent.