Last Updated: 1 Day Ago

Monthly Rent

$3,500

Beds

3

Baths

2

* Price shown is base rent. Excludes user-selected optional fees and variable or usage-based fees and required charges due at or prior to move-in or at move-out. View Fees and Policies for details. Price, availability, fees, and any applicable rent special are subject to change without notice.

Note: Prices and availability subject to change without notice.

Lease Terms

Contact office for Lease Terms

Expenses

  • Security Deposit - Refundable: $3500

About 25 College Ave

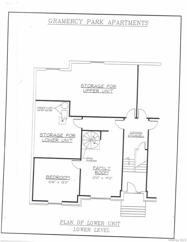
Sussex at Gramercy Park! Welcome home to this spacious and sunny two-level condo-style end unit apartment in one of the best locations around! You’ll love being able to walk to everything — shopping,restaurants,NYC bus/train — all in the top-rated Nanuet School District. This roomy 2–3 bedroom,2 bath home offers a great layout with a large,comfortable living room and a huge eat-in kitchen featuring a ceramic tile center island and glass sliders that open to a private deck — perfect for morning coffee or weekend BBQs. The primary bedroom suite has its own private bath with a shower,and lots of closet space. The second bedroom is very spacious too and includes an oversized double closet. There’s also a second full bath with a tub/shower combo and your own washer and dryer right in the unit! You’ll find beautiful oak floors throughout the main living level,and ceramic tile in the kitchen and baths. Down the spiral staircase,the bright and airy lower level offers even more space — a large family room,a den/office that could be used as a third bedroom,plus a big storage room. Other great features include central air,two assigned parking spots right near the front door (#86 and #87),and access to a refreshing community pool that’s open on summer weekends. Pet policy: One indoor cat is welcome (add’l $35/month). Sorry,no dogs and only one pet/animal permitted. Maximum 5 occupants and 2 non-commercial vehicles. Apt to be professionally cleaned and painted. Long term lease possible. Don't wait!!! Don’t miss out — this one has it all and won’t last long! Based on information submitted to the MLS GRID as of [see last changed date above]. All data is obtained from various sources and may not have been verified by broker or MLS GRID. Supplied Open House Information is subject to change without notice. All information should be independently reviewed and verified for accuracy. Properties may or may not be listed by the office/agent presenting the information. Some IDX listings have been excluded from this website. Prices displayed on all Sold listings are the Last Known Listing Price and may not be the actual selling price.

25 College Ave is located in Nanuet, New York in the 10954 zip code.

Protect yourself from fraud. Do not send money to anyone you don't know.

Floorplan Amenities

  • Air Conditioning
  • Smoke Free

Pet Policy

  • Dogs and Cats Allowed

Commuter Rail

  • Nanuet

    Walk: 13 min 0.7 mi
  • Spring Valley

    Drive: 4 min 2.5 mi
  • Pearl River

    Drive: 7 min 3.8 mi
  • Montvale

    Drive: 8 min 5.0 mi
  • Park Ridge

    Drive: 10 min 5.8 mi

Universities

Parks & Recreation

  • Blauvelt State Park

    Drive: 9 min 5.0 mi
  • Wood Dale County Park

    Drive: 13 min 7.2 mi
  • DePiero's Farm

    Drive: 12 min 7.2 mi
  • Nyack Beach State Park

    Drive: 15 min 7.9 mi
  • Rockland Lake State Park

    Drive: 14 min 8.3 mi

Shopping Centers & Malls

Military Bases

Similar Nearby Apartments with Available Units

  • = This Property
  • = Similar Nearby Apartments

Ratings

Report an Issue

25 College Ave
I would like to...
0 out of 400 characters
(845) 642-5350

Submitting Request

Thank You

Your email has been sent.