Last Updated: 1 Day Ago

Monthly Rent

$4,800

Beds

3

Baths

1.5

* Price shown is base rent. Excludes user-selected optional fees and variable or usage-based fees and required charges due at or prior to move-in or at move-out. View Fees and Policies for details. Price, availability, fees, and any applicable rent special are subject to change without notice.

Note: Prices and availability subject to change without notice.

Lease Terms

Contact office for Lease Terms

About 453 Beach Ave

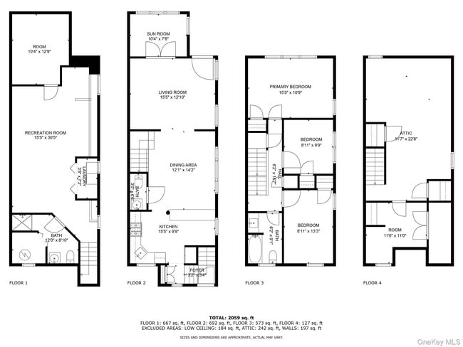
Charming Duplex-Style Colonial in the desirable Rye Neck School District and just a couple of blocks to the Train Station. This beautifully maintained duplex-style apartment lives like a single-family home,ideally located offering over 1,200 SF of living space across two levels. The main level features an inviting entry with a sun room/Den,living room/dining room open to the kitchen with direct access to designated yard space. On the 2nd floor you'll find three comfortable bedrooms,an updated bathroom,and a walk-up attic offering finished storage space with many possible uses. The basement includes a finished bonus area ideal for use as a rec room or work-out space,laundry area and utility room. Additional highlights include: hardwood floors as seen,2 off street parking spaces. Convenient- just minutes from Metro North (under 40 minutes to NYC) and Mamaroneck’s vibrant downtown—home to charming shops,restaurants,entertainment,Harbor Island Park,and more. Tenant is responsible for all utilities (Oil heat/hot water,electricity,gas,electric,water. No smoking. Available for immediate occupancy. Good credit and income requirements Based on information submitted to the MLS GRID as of [see last changed date above]. All data is obtained from various sources and may not have been verified by broker or MLS GRID. Supplied Open House Information is subject to change without notice. All information should be independently reviewed and verified for accuracy. Properties may or may not be listed by the office/agent presenting the information. Some IDX listings have been excluded from this website. Prices displayed on all Sold listings are the Last Known Listing Price and may not be the actual selling price.

453 Beach Ave is located in Mamaroneck, New York in the 10543 zip code.

Protect yourself from fraud. Do not send money to anyone you don't know.

Floorplan Amenities

  • Smoke Free

Airport

  • Westchester County

    Drive: 19 min 11.3 mi
  • LaGuardia

    Drive: 34 min 19.2 mi

Commuter Rail

  • Mamaroneck Station

    Walk: 7 min 0.4 mi
  • Harrison Station

    Drive: 5 min 1.7 mi
  • Larchmont Station

    Drive: 6 min 3.0 mi
  • Rye Station

    Drive: 7 min 4.1 mi
  • New Rochelle Station

    Drive: 8 min 4.6 mi

Transit / Subway

  • Eastchester-Dyre Ave

    Drive: 14 min 7.8 mi
  • Baychester Avenue

    Drive: 15 min 8.3 mi
  • Wakefield-241 Street

    Drive: 16 min 9.0 mi
  • Nereid Avenue

    Drive: 17 min 9.4 mi
  • 233 Street

    Drive: 17 min 9.8 mi

Universities

Parks & Recreation

  • Otter Creek Preserve

    Drive: 4 min 1.4 mi
  • Marshlands Conservancy

    Drive: 5 min 2.0 mi
  • Weinberg Nature Center

    Drive: 6 min 2.5 mi
  • Rye Nature Center

    Drive: 6 min 3.3 mi
  • Sheldrake Environmental Center

    Drive: 7 min 3.6 mi

Shopping Centers & Malls

Military Bases

Similar Nearby Apartments with Available Units

  • = This Property
  • = Similar Nearby Apartments

Ratings

Report an Issue

453 Beach Ave
I would like to...
0 out of 400 characters
(914) 646-3202

Submitting Request

Thank You

Your email has been sent.