Last Updated: 1 Day Ago

Total Monthly Price

$3,547

Beds

3

Baths

3

* Price shown is total price based on community-supplied monthly required fees. Excludes user-selected optional fees and variable or usage-based fees and required charges due at or prior to move-in or at move-out. View Fees and Policies for details. Price, availability, fees, and any applicable rent special are subject to change without notice.

Note: Prices and availability subject to change without notice.

Lease Terms

Contact office for Lease Terms

Fees and Policies

The fees below are based on community-supplied data and may exclude additional fees and utilities.

  • Garage Attached
  • Garage Lot

Property Fee Disclaimer: Based on community-supplied data and independent market research. Subject to change without notice. May exclude fees for mandatory or optional services and usage-based utilities.

About 10412 Robinwood Rd

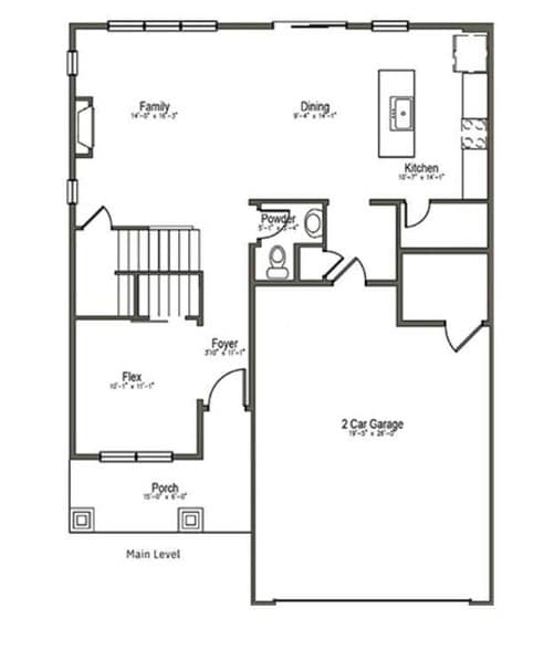
Available now this 3 bedroom home located just a few miles south of Victoria and close to Chaska. The home has 1888 finished sq ft. The main level has an open concept kitchen/dining/living room with plenty of morning sunshine with the large windows. There is an island kitchen with granite counters. The main level also has an office or "Flex Room". The 2nd floor has 3 bedrooms with a private primary suite with a dual vanity and large walk-in closet. Also on the 2nd level is a laundry room with a washer and dryer provided. Large2 car insulated garage. Up to 2 pets are welcome with pet fees. As a resident of this rental community, you will have access to an amazing Clubhouse with a Party Room, Exercise Room and an Outdoor Pool. The management maintains the lawn and snow removal for you with no extra cost. Available for a 12-18 month lease or a shorter lease for 6+ month for an extra fee. Call for a tour.

10412 Robinwood Rd is located in Chaska, Minnesota in the 55318 zip code.

Protect yourself from fraud. Do not send money to anyone you don't know.

Community Features

  • Pool

Floorplan Amenities

  • Washer/Dryer
  • Air Conditioning
  • Heating
  • Fireplace
  • Dishwasher
  • Disposal
  • Stainless Steel Appliances
  • Kitchen
  • Microwave
  • Range
  • Refrigerator
  • Freezer
  • Dining Room
  • Basement

Parking

  • Garage Parking
  • Other Parking

Parks & Recreation

  • Carver Park Reserve

    Drive: 14 min 6.1 mi
  • Lowry Nature Center

    Drive: 13 min 6.3 mi
  • Minnesota Landscape Arboretum

    Drive: 12 min 6.4 mi
  • Lake Minnewashta Regional Park

    Drive: 12 min 7.0 mi
  • Lake Minnetonka Regional Park

    Drive: 14 min 7.7 mi

Shopping Centers & Malls

Schools

Data provided by GreatSchools.org 2025 © 2025. All rights reserved.

Similar Nearby Apartments with Available Units

  • = This Property
  • = Similar Nearby Apartments

Ratings

Walkability

NR
Not Rated

Transit

NR
Not Rated

Bikeability

NR
Not Rated

About the Listing Agent

Dave Thorp

Coldwell Banker Realty

(651) 829-6188 Send Message

Dave's real estate team consists of, an office Mortgage Broker (Guaranteed Rate Affinity), Office Manager- Sue Ebert , a Closing-Title Expert - Chrissy Rowland (Burnet Title), Professional Photographer (Virtuance Co.), Matterport Virtual Tours videos, Stagers & Virtual Stagers, and Contractors. The team is a seasoned crew to make your real estate transaction as easy as possible. Over the last 22 years Dave has experience with completing over 1,800 real estate sales & leases covering almost every type of real estate property, from residential homes to commercial buildings, land subdivisions and lot sales. Dave's experience has made him an expert in negotiating the best deal for his client's side of the transaction with integrity. Dave has renovated many homes in the area for resale and helps his clients with ideas needed to get a home ready before marketing the home for sale. Dave has a list of contractors he has used over the years to make the repairs needed and staging ideas before a home is listed for sale. Dave and his wife Cheryl are both University of Wisconsin-Madison Alumni (Badgers) and have 2 daughters that graduated from Minnetonka High School. They have lived in Minneapolis, Wayzata, Plymouth, Deephaven, Minnetonka and now reside in Shorewood. Cheryl is a RN specializing in pacemakers at the Minneapolis Heart Institute. Dave has coached youth soccer for 13 years and hockey for 2 years. He continues to play in a men's hockey league, and local pond hockey tournaments every year. Dave has kept a boat on Lake Minnetonka for over 30 years and knows every part of the lake and all the best shorelines. Dave is a top rated restaurant critic on TripAdvisor.com for the Lake Minnetonka area.

View Dave Thorp's Agent Profile

Dave's real estate team consists of, an office Mortgage Broker (Guaranteed Rate Affinity), Office Manager- Sue Ebert , a Closing-Title Expert - Chrissy Rowland (Burnet Title), Professional Photographer (Virtuance Co.), Matterport Virtual Tours videos, Stagers & Virtual Stagers, and Contractors. The team is a seasoned crew to make your real estate transaction as easy as possible. Over the last 22 years Dave has experience with completing over 1,800 real estate sales & leases covering almost every type of real estate property, from residential homes to commercial buildings, land subdivisions and lot sales. Dave's experience has made him an expert in negotiating the best deal for his client's side of the transaction with integrity. Dave has renovated many homes in the area for resale and helps his clients with ideas needed to get a home ready before marketing the home for sale. Dave has a list of contractors he has used over the years to make the repairs needed and staging ideas before a home is listed for sale. Dave and his wife Cheryl are both University of Wisconsin-Madison Alumni (Badgers) and have 2 daughters that graduated from Minnetonka High School. They have lived in Minneapolis, Wayzata, Plymouth, Deephaven, Minnetonka and now reside in Shorewood. Cheryl is a RN specializing in pacemakers at the Minneapolis Heart Institute. Dave has coached youth soccer for 13 years and hockey for 2 years. He continues to play in a men's hockey league, and local pond hockey tournaments every year. Dave has kept a boat on Lake Minnetonka for over 30 years and knows every part of the lake and all the best shorelines. Dave is a top rated restaurant critic on TripAdvisor.com for the Lake Minnetonka area.

View Dave Thorp's Agent Profile
Report an Issue


10412 Robinwood Rd
I would like to...
0 out of 400 characters
(651) 829-6188

Submitting Request

Thank You

Your email has been sent.

}