Last Updated: 1 Day Ago

Monthly Rent

$2,300

Beds

4

Baths

3

* Price shown is base rent. Excludes user-selected optional fees and variable or usage-based fees and required charges due at or prior to move-in or at move-out. View Fees and Policies for details. Price, availability, fees, and any applicable rent special are subject to change without notice.

Note: Prices and availability subject to change without notice.

Lease Terms

Contact office for Lease Terms

Expenses

  • Security Deposit - Refundable: $2300

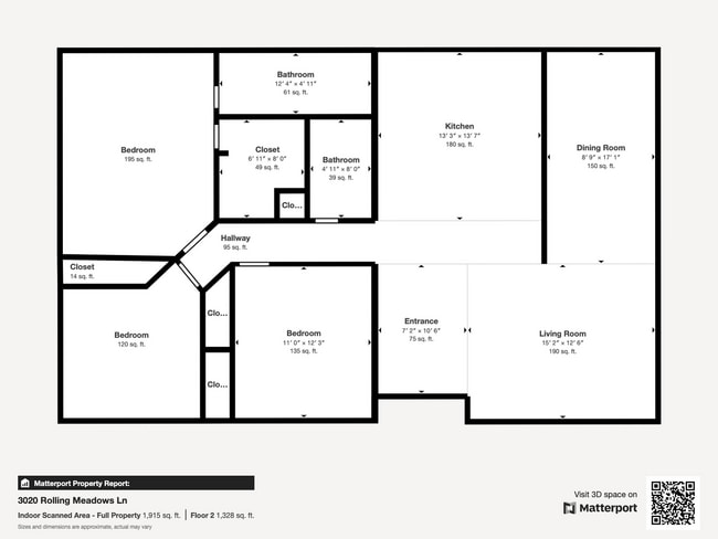
About 3020 Rolling Mdws Ln

3D Tour: Nestled on a tranquil cul-de-sac, this home boasts abundant natural light, creating an inviting ambiance. The residence offers a seamless blend of style and practicality. Four bedrooms and three bathrooms provide ample space for relaxation and entertainment, and the deck makes entertaining family and friends simple! Dog friendly for up to 2 dogs, no exceptions. One-time, non-refundable pet fee: $350 Tenants are responsible for setting up and maintaining service with the following providers: Gas – Propane Central | Electric – DS&O | Water/Sewer/Trash | RWD | Trash| Howies Trash Service | Tenants are responsible for maintaining the following for the property: Lawn care Snow removal Pest control Renter’s Insurance: Required for all tenants throughout the entire lease term Proof of active coverage is required before keys will be released Policy must list NextHome Unlimited as Additional Insured Reminder: Owner’s insurance does not cover tenant personal property or liability Have a question or want to schedule a showing? Please go through the ‘**Contact Us’** button. Our team responds quickly, and all available details are listed on the property page—staff does not have additional information beyond what’s posted. Use **Contact Us** and we will get back to you. For accuracy and privacy, we **do not** accept showing requests, applications, or inquiries submitted through third-party sites (e.g., Zillow, ). **All** showings, questions, applications, and communication only go through the **NextHome Unlimited** website. **Screening Policy:** •Application fee: $50 per application. •Each resident over the age of 18 years old must submit a separate rental application. •Application fees are non-refundable. •Applications are processed on a first-come, first-serve basis. • For more details about our screening policies, please visit:

Please View 3D Virtual Walk-Through Before Scheduling a Showing is located in Milford, Kansas in the 66514 zip code.

Protect yourself from fraud. Do not send money to anyone you don't know.

Parks & Recreation

  • Milford State Park

    Drive: 7 min 1.8 mi
  • Milford Nature Center

    Drive: 8 min 2.6 mi

Shopping Centers & Malls

Military Bases

Schools

GreatSchools Rating

Private Elementary, Middle & High School

116 Students
(785) 238-6413
Grades PK-12

Data provided by GreatSchools.org 2025 © 2025. All rights reserved.

Similar Nearby Apartments with Available Units

  • = This Property
  • = Similar Nearby Apartments

Ratings

Report an Issue

Please View 3D Virtual Walk-Through Before Scheduling a Showing
I would like to...
0 out of 400 characters
(785) 762-2451

Submitting Request

Thank You

Your email has been sent.