Public Elementary School
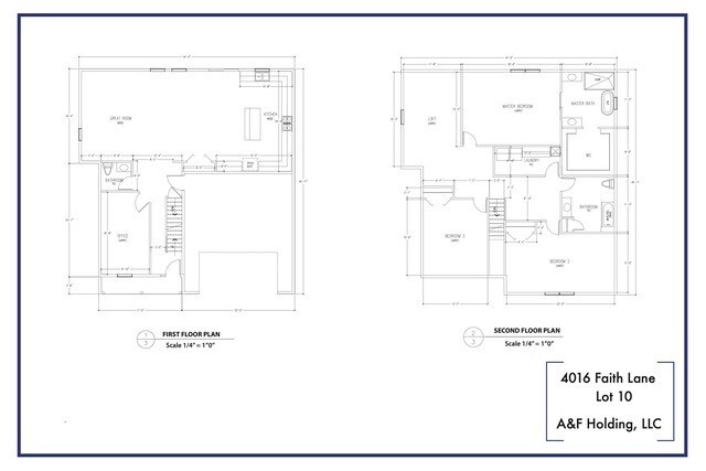
This BRAND NEW CONSTRUCTION home is ready for you to move-in! Welcome to the OXFORD model at Brooke Toria Estates,the most stunning new construction subdivision in St Charles! Featuring 3 bedrooms,2.5 bathrooms,and 3,037 square feet of living space,this home boasts both style and functionality. Step into a vast living area featuring refinished red oak flooring with room for a formal dining or a breakfast bar. An open kitchen with all the bells and whistles includes tile backsplash,commercial grade vent hood,42 inch soft close Shaker cabinetry,gleaming quartz countertops,pantry closet and brand new stainless steel appliances with extra room for a small office space. A first floor office or den creates numerous possibilities - turn it into a guest room,gym,craft room,or rec room! Enjoy a primary bedroom with ensuite bathroom and walk in closet on the second floor. The ensuite primary bathroom is truly extraordinary with American Standard fixtures,Glacier Bay toilet,LED mirrors,two separate vanities and a standing shower. 2 additional oversized bedrooms,a laundry room,and loft space complete the second floor. A sprawling unfinished basement welcomes your creativity - ask about the three developer upgrade options! With a downtown recognized by the Chicago Tribune as a "Top 10" for fine dining,arts,entertainment,and recreational opportunities,this community is a cut above the rest. Coupled with award winning schools (District 303) and a nationally recognized park district,St. Charles and Brooke Toria Estates are ready to welcome you home! MLS# MRD12462716 Based on information submitted to the MLS GRID as of [see last changed date above]. All data is obtained from various sources and may not have been verified by broker or MLS GRID. Supplied Open House Information is subject to change without notice. All information should be independently reviewed and verified for accuracy. Properties may or may not be listed by the office/agent presenting the information. Some IDX listings have been excluded from this website. Prices displayed on all Sold listings are the Last Known Listing Price and may not be the actual selling price.
4016 Faith Ln is located in St. Charles, Illinois in the 60174 zip code.
 
             
             
             
             
             
             
             
             
             
             
             
             
             
             
             
             
             
             
             
             
             
             
             
             
             
             
             
             
             
             
             
             
             
            