Last Updated: 1 Day Ago

Total Monthly Price

$4,500

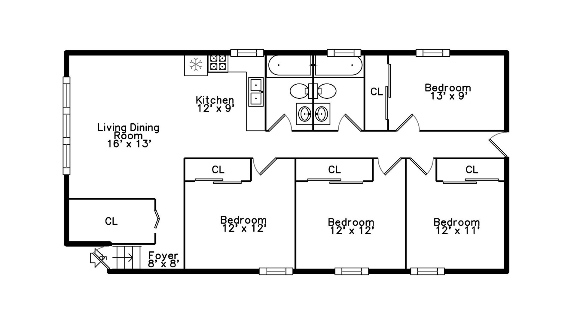
Beds

5

Baths

2

* Price shown is total price based on community-supplied monthly required fees. Excludes user-selected optional fees and variable or usage-based fees and required charges due at or prior to move-in or at move-out. View Fees and Policies for details. Price, availability, fees, and any applicable rent special are subject to change without notice.

Note: Prices and availability subject to change without notice.

Lease Terms

Contact office for Lease Terms

About 6459 N Wayne Ave

LOYOLA STUDENTS WELCOME!! 5-Bedroom, 2-Bathroom AND 4-Bedroom, 2-Bathroom available for one year Lease beginning on June 1 or July 1 w/option to renew for second year at no increase in the monthly rent. Unit has been highly upgraded and has central heat & air (HVAC). Large bedrooms w/ over-sized closets w/ full-length mirrored doors that slide open to reveal custom closet systems. Kitchen w/ all stainless steel appliances incl. Dishwasher & built-in microwave. Two full bathrooms w/ high end tile and plenty of storage space. Hardwood floors throughout. Coin laundry available in building. Garage parking available. Local long-time owner specializing in providing high quality, reasonably priced off-campus apartments to Loyola students for over 25 years!! Showings available by appointment.

6459 N Wayne Ave is located in Chicago, Illinois in the 60626 zip code.

Contact

Community Features

  • Laundry Facilities
  • Storage Space

Floorplan Amenities

  • Air Conditioning
  • Dishwasher
  • Stainless Steel Appliances
  • Kitchen
  • Microwave
  • Hardwood Floors

Parking

  • Garage Parking

Pet Policy

  • Cats and Dogs Allowed

Airport

  • Chicago O'Hare International

    Drive: 26 min 14.4 mi

Commuter Rail

  • Peterson/Ridge

    Drive: 3 min 1.4 mi
  • Rogers Park Station

    Drive: 5 min 1.4 mi
  • Evanston Main Street Station

    Drive: 7 min 2.8 mi
  • Ravenswood Station

    Drive: 7 min 3.3 mi
  • Evanston Davis Street Station

    Drive: 8 min 4.7 mi

Transit / Subway

  • Loyola Station

    Walk: 4 min 0.3 mi
  • Granville Station

    Walk: 12 min 0.7 mi
  • Morse Station

    Walk: 15 min 0.8 mi
  • Thorndale Station

    Drive: 3 min 1.3 mi
  • Jarvis Station

    Drive: 4 min 1.5 mi

Universities

Parks & Recreation

  • Touhy Park

    Drive: 4 min 1.6 mi
  • Warren Park

    Drive: 4 min 1.9 mi
  • Chase Park

    Drive: 6 min 2.8 mi
  • Rogers Park

    Drive: 6 min 2.9 mi
  • Winnemac Park

    Drive: 8 min 3.5 mi

Shopping Centers & Malls

Military Bases

Similar Nearby Apartments with Available Units

  • = This Property
  • = Similar Nearby Apartments

Ratings

Walkability

NR
Not Rated

Transit

NR
Not Rated

Bikeability

NR
Not Rated
Report an Issue


6459 N Wayne Ave
I would like to...
0 out of 400 characters

Submitting Request

Thank You

Your email has been sent.

}