Last Updated: 11 Hrs. Ago

Monthly Rent

$2,200

Beds

2

Baths

1

* Price shown is base rent. Excludes user-selected optional fees and variable or usage-based fees and required charges due at or prior to move-in or at move-out. View Fees and Policies for details. Price, availability, fees, and any applicable rent special are subject to change without notice.

Note: Prices and availability subject to change without notice.

Lease Terms

12 Months

About 2525 W Ardmore Ave

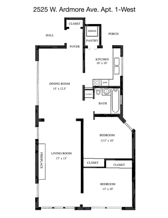
Be the first to live in this newly renovated spacious and bright corner unit! This home features newly refinished hard wood oak floors throughout,brand new stainless kitchen appliances,completely renovated bathroom,and generously sizes rooms. Foyer with hall closet,living spaces with attractive sconce lighting,decorative fireplace,and brand new lighting fixtures. New kitchen with walk-in pantry + additional storage shelves. The bathroom showcases a new subway-tiled shower,new tile flooring,new vanity and medicine cabinet,and contemporary lighting. A full-sized linen closet is nearby. The spacious primary bedroom includes oversize closet. Large secondary bedroom. Central air conditioning,gas forced air heating,and new Levelor blinds. Building has laundry facilities and storage locker. Non-smoking building. Off street parking included. A must see! MLS# MRD12576405 Based on information submitted to the MLS GRID as of [see last changed date above]. All data is obtained from various sources and may not have been verified by broker or MLS GRID. Supplied Open House Information is subject to change without notice. All information should be independently reviewed and verified for accuracy. Properties may or may not be listed by the office/agent presenting the information. Some IDX listings have been excluded from this website. Prices displayed on all Sold listings are the Last Known Listing Price and may not be the actual selling price.

2525 W Ardmore Ave is located in Chicago, Illinois in the 60659 zip code.

Protect yourself from fraud. Do not send money to anyone you don't know.

Floorplan Amenities

  • Air Conditioning
  • Dishwasher
  • Microwave
  • Refrigerator

Parking

  • Street Parking

Pet Policy

  • Dogs and Cats Allowed

Airport

  • Chicago O'Hare International

    Drive: 45 min 16.3 mi
  • Chicago Midway International

    Drive: 34 min 18.3 mi

Commuter Rail

  • Peterson/Ridge

    Drive: 3 min 1.2 mi
  • Ravenswood Station

    Drive: 5 min 2.4 mi
  • Rogers Park Station

    Drive: 6 min 2.5 mi
  • Forest Glen Station

    Drive: 9 min 4.9 mi
  • Irving Park Station

    Drive: 10 min 5.2 mi

Transit / Subway

  • Western Station (Brown Line)

    Drive: 4 min 1.8 mi
  • Damen Station (Brown Line)

    Drive: 4 min 2.1 mi
  • Rockwell Station

    Drive: 6 min 2.3 mi
  • Kedzie Station (Brown Line)

    Drive: 5 min 2.6 mi
  • Francisco Station

    Drive: 6 min 2.7 mi

Universities

Parks & Recreation

  • Warren Park

    Drive: 3 min 1.3 mi
  • Winnemac Park

    Drive: 3 min 1.3 mi
  • Rogers Park

    Drive: 5 min 2.5 mi
  • Chase Park

    Drive: 6 min 2.6 mi
  • North Park Village Nature Center

    Drive: 5 min 2.7 mi

Shopping Centers & Malls

Military Bases

Similar Nearby Apartments with Available Units

  • = This Property
  • = Similar Nearby Apartments

Ratings

Report an Issue

2525 W Ardmore Ave
I would like to...
0 out of 400 characters
(312) 751-0300

Submitting Request

Thank You

Your email has been sent.