Public Elementary School
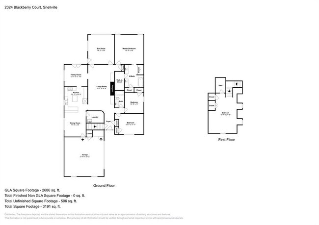
Stunning 4 bed 3 bath ranch style brick home in a cul-de-sac with a 4-car garage. The additional driveway gives access to a full unfinished basement. Upon entering you'll be greeted by the newly painted walls and beautiful flooring. Leading to the spacious living room with a decorative fireplace. Entertain guests in the large sunroom or take it outside onto the deck overlooking the backyard. The kitchen boasts an island,breakfast bar,and ample cabinet/counter space. The master bedroom is situated on the main level with its own private bathroom containing his/her vanity and a separate tub/shower. Nicely sized secondary bedrooms and do not forget the additional bedrooms located upstairs with its own bathroom as well. The property is conveniently located to shops,restaurants,and minutes away from Top Rated School Brookwood District. Do not miss out!
2324 Blackberry Ct is located in Snellville, Georgia in the 30078 zip code.
 
             
             
             
             
             
             
             
             
             
             
             
             
             
             
             
             
             
             
             
             
             
             
             
            