Last Updated: 2 Hrs. Ago

Monthly Rent

$2,125

Beds

3

Baths

2

* Price shown is base rent. Excludes user-selected optional fees and variable or usage-based fees and required charges due at or prior to move-in or at move-out. View Fees and Policies for details. Price, availability, fees, and any applicable rent special are subject to change without notice.

Note: Prices and availability subject to change without notice.

Lease Terms

Contact office for Lease Terms

Fees and Policies

The fees below are based on community-supplied data and may exclude additional fees and utilities.

  • Pet Rent
    $35 / mo
  • Pet Rent
    $35 / mo

Property Fee Disclaimer: Based on community-supplied data and independent market research. Subject to change without notice. May exclude fees for mandatory or optional services and usage-based utilities.

About 295 N Oakland Cir

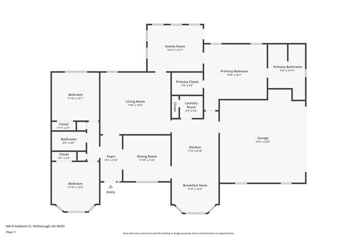
MOVE-IN READY This home is move-in ready. Schedule your tour now or start your application today. This 3-bedroom, 2-bathroom home in McDonough, GA offers a welcoming exterior and a comfortable interior layout designed for everyday living. A covered front entrance creates an inviting first impression as you arrive. Inside, the living room features hard surface flooring and taller ceilings, creating an open and airy feel. The home includes a designated dining area with a tray ceiling and a large window that brings in natural light, providing a defined space for meals and gatherings. The kitchen is arranged with generous cabinet and counter space, supporting daily cooking and meal preparation. Ceiling fans run throughout the home, adding everyday comfort across living and bedroom spaces. All bedrooms feature hard surface flooring, offering a cohesive and low-maintenance finish. The primary bedroom includes a spacious en suite bathroom with a separate soaking tub, a standing shower, and a double vanity sink. Out back, a large deck overlooks the yard and provides a comfortable outdoor space for relaxing or enjoying time outside. With its inviting exterior, functional layout, and McDonough location close to local amenities, this home offers a comfortable and appealing place to settle in. Apply now to make this home yours! *Maymont Homes provides residents with convenient solutions, including simplified utility billing and flexible rent payment options. Contact us for more details. This information is deemed reliable, but not guaranteed. All measurements are approximate. Actual product and home specifications may vary in dimension or detail. Images are for representational purposes only. Some programs and services may not be available in all market areas. Prices and availability are subject to change without notice. Advertised rent prices do not include the required application fee, the partially refundable reservation fee (due upon application approval), or the mandatory monthly utility management fee (in select market areas.) Residents must maintain renters insurance as specified in their lease. If third-party renters insurance is not provided, residents will be automatically enrolled in our Master Insurance Policy for a fee. Select homes may be located in communities that require a monthly fee for community-specific amenities or services. For complete details, please contact a company leasing representative. Equal Housing Opportunity. Estimated availability date is subject to change based on construction timelines and move-out confirmation. This property allows self guided viewing without an appointment. Contact for details.

295 N Oakland Cir is located in McDonough, Georgia in the 30253 zip code.

Protect yourself from fraud. Do not send money to anyone you don't know.

Pet Policy

  • Dogs and Cats Allowed

Universities

Parks & Recreation

  • Newman Wetlands Center

    Drive: 15 min 8.7 mi

Shopping Centers & Malls

Schools

Data provided by GreatSchools.org 2025 © 2025. All rights reserved.

Similar Nearby Apartments with Available Units

  • = This Property
  • = Similar Nearby Apartments

Ratings

Report an Issue

295 N Oakland Cir
I would like to...
0 out of 400 characters
(888) 659-9596

Submitting Request

Thank You

Your email has been sent.