Public Elementary School
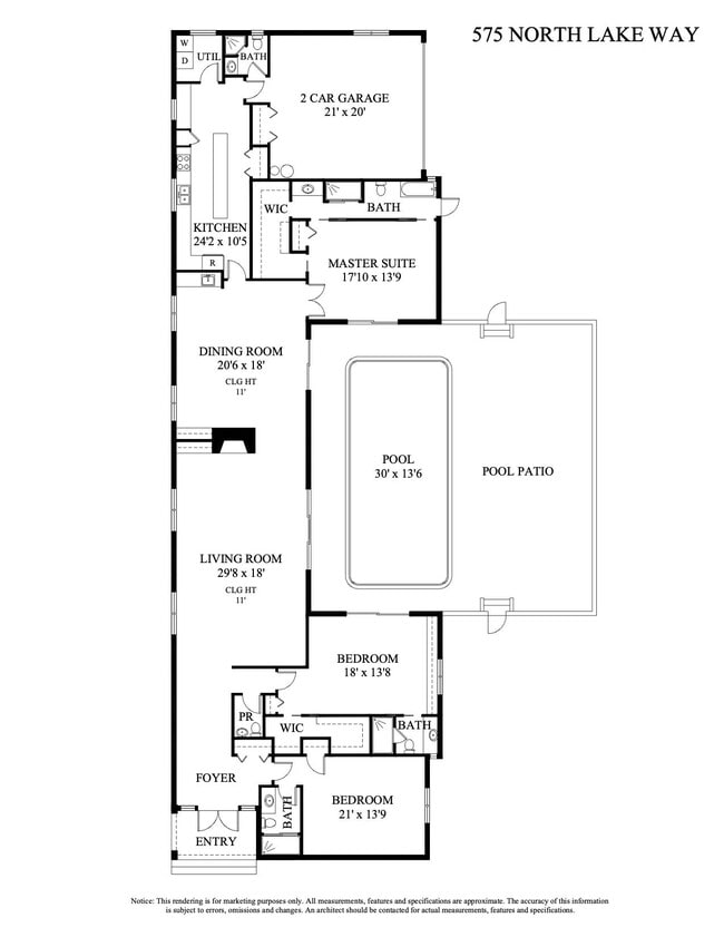
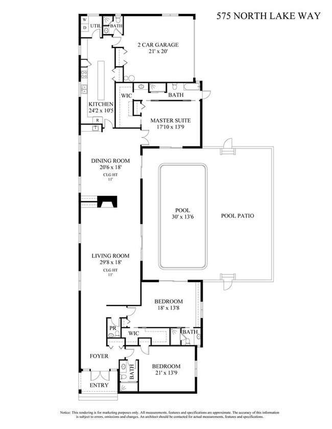
Located on North Lake Way and South Woods Road, this North End property sits on a generous 11,761+/- square-foot corner lot.The residence offers 3,826+/- total square feet with 3 bedrooms, 4 and a half bathrooms, a large pool and 2-car garage. The home's layout is designed around the south facing pool allowing for an abundance of natural light throughout. The living room has vaulted ceilings and a modern fireplace with sliding glass doors out to the pool terrace. The dining room has a wet bar, easy access to the kitchen, as well as doors to the pool. The eat-in kitchen features an island, ample storage, and a built-in desk.The primary bedroom is located on the east side of the house for added privacy and features doors to the pool, a walk-in closet, and an ensuite bath with a
575 N Lake Wy is located in Palm Beach, Florida in the 33480 zip code.
 
             
             
             
             
             
             
             
             
             
             
             
             
             
             
             
             
             
             
             
             
             
            