Last Updated: 3 Hrs. Ago

Total Monthly Price

$2,175

12 Month Lease

Beds

3

Baths

1.5

* Price shown is total price based on community-supplied monthly required fees. Excludes user-selected optional fees and variable or usage-based fees and required charges due at or prior to move-in or at move-out. View Fees and Policies for details. Price, availability, fees, and any applicable rent special are subject to change without notice.

Note: Prices and availability subject to change without notice.

Lease Terms

Contact office for Lease Terms

About 15 Lake Dr

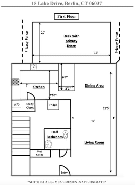
3 Bed, 1.5 bath townhouse 15 Lake Drive, Berlin, CT Rent: $2,175. Heat (gas) and electricity are tenant’s responsibility. First month rent + 1.5 to 2 month security deposit required to move in. Security deposit based on income and credit. Pets considered on a case by case basis. Pet fee may apply. **Appliances have all been replaced with new stainless steel options** Welcome to your new home at 15 Lake Drive in South Berlin! Situated on a quiet, residential cul-de-sac that is within walking distance to Silver Lake this renovated 3 bedroom & 1.5 bath townhome offers a fully applianced kitchen with a gas stove and large pantry area. The living/dining area offers an in wall AC unit, and sliding doors that lead to a newly built 16x20’ Trex deck, secluded by a 6’ vinyl privacy fence. The washer and dryer are also found on the 1st floor of this side by side unit. The upper level features 3 bedrooms and a full bath, with the master bedroom having an in wall AC already in place. All rooms feature new paint and flooring. This was the owner’s unit and it shows! Shed (for storage) is included in rental as well. 3 Bed, 1.5 bath townhouse 15 Lake Drive, Berlin, CT Rent: $2,175. Heat (gas) and electricity are tenant’s responsibility. First month rent + 1.5 to 2 month security deposit required to move in. Security deposit based on income and credit. Pets considered on a case by case basis. Pet fee may apply.

15 Lake Dr is located in Berlin, Connecticut in the 06037 zip code.

Floorplan Amenities

  • Washer/Dryer
  • Air Conditioning
  • Pantry
  • Kitchen
  • Dining Room
  • Deck

Commuter Rail

  • Meriden

    Drive: 6 min 4.0 mi
  • Berlin

    Drive: 8 min 4.6 mi
  • Berlin Amtrak

    Drive: 8 min 4.6 mi
  • Wallingford

    Drive: 14 min 9.6 mi
  • Wallingford Amtrak

    Drive: 14 min 10.0 mi

Universities

Parks & Recreation

  • New Britain Youth Museum

    Drive: 11 min 7.9 mi
  • Powder Ridge Ski Area

    Drive: 15 min 8.8 mi
  • Wadsworth Falls State Park

    Drive: 21 min 11.1 mi
  • Van Vleck Observatory

    Drive: 16 min 11.3 mi
  • Kidcity Children's Museum

    Drive: 14 min 11.4 mi

Shopping Centers & Malls

Military Bases

Similar Nearby Apartments with Available Units

  • = This Property
  • = Similar Nearby Apartments

Ratings

Walkability

NR
Not Rated

Transit

NR
Not Rated

Bikeability

NR
Not Rated
Report an Issue

15 Lake Dr
I would like to...
0 out of 400 characters
(860) 735-4048

Submitting Request

Thank You

Your email has been sent.

}