Last Updated: 10 Hrs. Ago

Monthly Rent

$2,650

Beds

3

Baths

2.5

* Price shown is base rent. Excludes user-selected optional fees and variable or usage-based fees and required charges due at or prior to move-in or at move-out. View Fees and Policies for details. Price, availability, fees, and any applicable rent special are subject to change without notice.

Note: Prices and availability subject to change without notice.

Lease Terms

Contact office for Lease Terms

Expenses

  • Security Deposit - Refundable: $2650

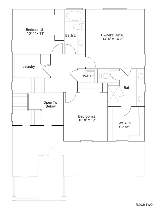
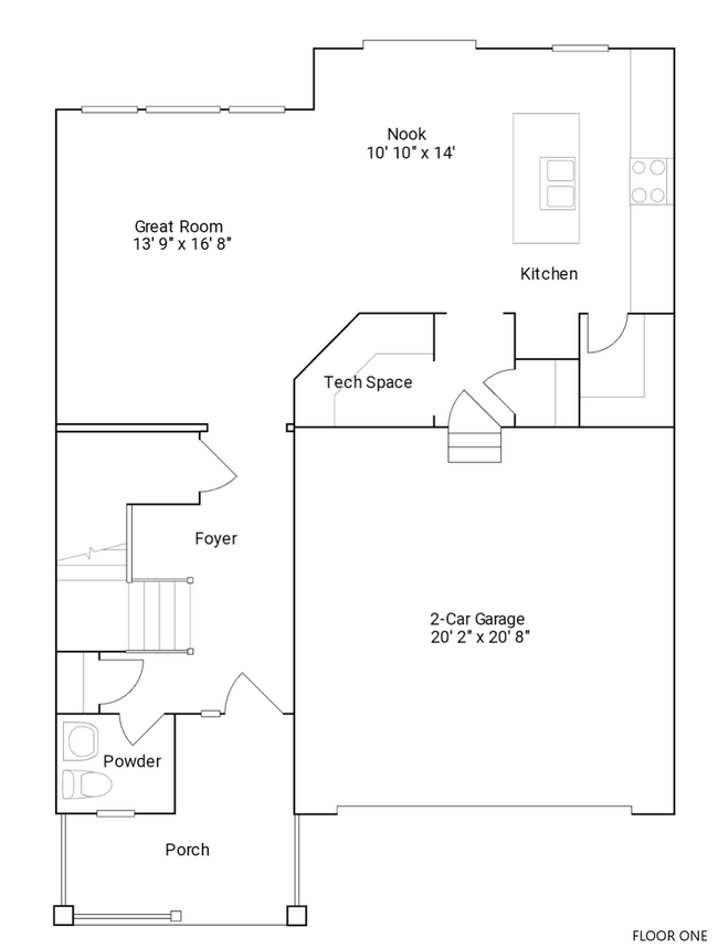
About 2591 Painted Turtle Ave

AVAILABLE: NOW! Located in the up & coming Kinston neighborhood, this is a really special find! Spacious three bedroom, two and a half bathroom home ready for move in. Living room & dining area are filled with bright natural light thanks to the huge windows. Step out your doors to the large deck with the most incredible views of the Front Range. Main floor features a tech space, with a built in desk & cabinets perfect for the at employee - or gamer! Fantastic Luxury Vinyl Plank flooring throughout the property, with the bedrooms featuring carpeted floors. Primary bedroom has large attached private bathroom with double sinks and a 'get ready' vanity. Conveniently located washer & dryer set on the same floor as the bedrooms provides an easy laundry experience. Unfinished basement has a sliding door set leading out to the huge beautifully designed backyard. Neighborhood features 'The Hub' - a space to come together & share a meal, or check out the community center room with a kitchenette & pool table, a reservable space for your next event! Located near The Promenade Shops at Centerra & convenient access to I-25. UTILITIES: Tenants pay all utilities direct to provider. PETS: $200 deposit per approved pet. NO PET RENT! The number, size, and age of pets allowed is considered on a case-by-case basis. Please let your leasing agent know if you intend to have pet(s). Restrictions may apply. SQUARE FOOTAGE: Can be obtained from County Records and is the responsibility of tenant to verify. PORTABLE TENANT SCREENING REPORTS (PTSR): You have the right to provide KEVCO with a PTSR that is not more than 30 days old, as defined in 38-12-902(2.5), Colorado Revised Statutes; and if you provide Landlord with a PTSR, the Landlord is prohibited from: a) charging you a rental application fee; or b) charging you a fee for Landlord to access or use the PTSR. If you chose to use a portable tenant screening report, the following requirements apply: The PTSR must be made available to KEVCO by a consumer reporting agency/third-party website that regularly engages in the business of providing consumer reports, at no cost to KEVCO... The PTSR must comply with all state and federal laws pertaining to use and disclosure of information contained in a consumer report by a consumer reporting agency, and..... You certify that there has not been a material change in the information in the PTSR, including the your name, address, bankruptcy status, criminal history, or eviction history, since the PTSR was generated. APPLICATIONS are first come first served. You will find a complete guide to screening criteria and the leasing process by visiting our website at THIRD PARTY SITES: if you are viewing this ad on Zillow or other 3rd party site, please know that they auto-fill data that is not always accurate. Contact our office for details and answers to questions or visit our website at .

Sprawling Newer Construction Home is located in Loveland, Colorado in the 80538 zip code.

Protect yourself from fraud. Do not send money to anyone you don't know.

Universities

Parks & Recreation

  • River Bluffs Open Space

    Drive: 11 min 5.8 mi
  • Fossil Creek Reservoir Regional Open Space

    Drive: 10 min 6.0 mi
  • Pelican Marsh Natural Area

    Drive: 14 min 8.6 mi
  • Boyd Lake State Park

    Drive: 19 min 9.2 mi
  • Fossil Creek Park

    Drive: 17 min 10.4 mi

Shopping Centers & Malls

Similar Nearby Apartments with Available Units

  • = This Property
  • = Similar Nearby Apartments

Ratings

Report an Issue

Sprawling Newer Construction Home
I would like to...
0 out of 400 characters
(970) 419-8881

Submitting Request

Thank You

Your email has been sent.